Zwette 19
3209 BN Hekelingen
beschikbaar
€ 450.000,- k.k.
Interesse in deze woning?
Laurens helpt je graag verder! Neem contact met ons op.
Omschrijving
Wonen in alle rust met verrassend veel ruimte en comfort!
Op zoek naar een instapklare, energiezuinige en ruime woning met zonnige tuin én parkeerplek op eigen terrein? Dan is deze uitgebouwde en gemoderniseerde woning in het landelijke Hekelingen absoluut een bezichtiging waard! Dankzij de dakopbouw, moderne keuken en meerdere slaapkamers is dit een heerlijk huis dat van alle gemakken voorzien is.
De ligging is ideaal: rustig en groen wonen, omgeven door recreatiemogelijkheden op en rond het water (Spui, Bernisse, Park Waterland en Park Braband), terwijl winkels, scholen en andere voorzieningen toch binnen handbereik liggen.
Begane grond: Entree/hal met meterkast, modern zwevend toilet en praktische bijkeuken met aansluitingen voor wasmachine en droger. De lichte, gezellige woonkamer is voorzien van een laminaatvloer met vloerverwarming (2 groepen), strak gestuukte wanden en plafond, en een schuifpui richting de tuin. Aan de achterzijde bevindt zich de moderne keuken (2021) met diverse inbouwapparatuur: gaskookplaat, afzuigkap, vaatwasser, combi-oven en koel-vriescombinatie. Vanuit hier geven openslaande deuren toegang tot de zonnige achtertuin op het zuidwesten, fraai aangelegd en voorzien van stenen berging en achterom.
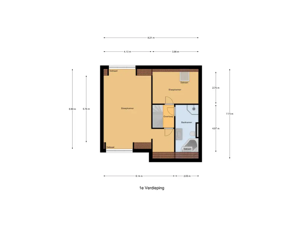
1e Verdieping: De ruime overloop biedt toegang tot de slaapkamers. De royale ouderslaapkamer is gerealiseerd dankzij de opbouw en beschikt over twee dakkapellen, airco en een ruime bergvliering. De tweede slaapkamer heeft een nieuw dakraam. De badkamer is volledig betegeld en uitgerust met een douche, whirlpool hoekbad, 2e toilet en wastafelmeubel.
2e Verdieping: Een open zolder met dakraam en CV-opstelling (2021). Deze ruimte kan eenvoudig gebruikt worden als 3e slaapkamer, werk- of hobbykamer.
Kenmerken:
- Energielabel C
- Verrassend veel ruimte door de opbouw
- 2 Dakkapellen
- Moderne keuken (2021)
- Parkeerplaats op eigen terrein
- Achtertuin op het zonnige zuidwesten
- Oplevering in overleg
Lees meer
Op zoek naar een instapklare, energiezuinige en ruime woning met zonnige tuin én parkeerplek op eigen terrein? Dan is deze uitgebouwde en gemoderniseerde woning in het landelijke Hekelingen absoluut een bezichtiging waard! Dankzij de dakopbouw, moderne keuken en meerdere slaapkamers is dit een heerlijk huis dat van alle gemakken voorzien is.
De ligging is ideaal: rustig en groen wonen, omgeven door recreatiemogelijkheden op en rond het water (Spui, Bernisse, Park Waterland en Park Braband), terwijl winkels, scholen en andere voorzieningen toch binnen handbereik liggen.
Begane grond: Entree/hal met meterkast, modern zwevend toilet en praktische bijkeuken met aansluitingen voor wasmachine en droger. De lichte, gezellige woonkamer is voorzien van een laminaatvloer met vloerverwarming (2 groepen), strak gestuukte wanden en plafond, en een schuifpui richting de tuin. Aan de achterzijde bevindt zich de moderne keuken (2021) met diverse inbouwapparatuur: gaskookplaat, afzuigkap, vaatwasser, combi-oven en koel-vriescombinatie. Vanuit hier geven openslaande deuren toegang tot de zonnige achtertuin op het zuidwesten, fraai aangelegd en voorzien van stenen berging en achterom.
1e Verdieping: De ruime overloop biedt toegang tot de slaapkamers. De royale ouderslaapkamer is gerealiseerd dankzij de opbouw en beschikt over twee dakkapellen, airco en een ruime bergvliering. De tweede slaapkamer heeft een nieuw dakraam. De badkamer is volledig betegeld en uitgerust met een douche, whirlpool hoekbad, 2e toilet en wastafelmeubel.
2e Verdieping: Een open zolder met dakraam en CV-opstelling (2021). Deze ruimte kan eenvoudig gebruikt worden als 3e slaapkamer, werk- of hobbykamer.
Kenmerken:
- Energielabel C
- Verrassend veel ruimte door de opbouw
- 2 Dakkapellen
- Moderne keuken (2021)
- Parkeerplaats op eigen terrein
- Achtertuin op het zonnige zuidwesten
- Oplevering in overleg
Kenmerken
Overdracht
| Vraagprijs | € 450.000,- k.k. |
| Status | beschikbaar |
| Aanvaarding | in overleg |
Bouw
| Soort woning | woonhuis |
| Soort woonhuis | eengezinswoning |
| Type woonhuis | tussenwoning |
| Aantal woonlagen | 3 |
| Bouwvorm | bestaande bouw |
| Bouwjaar | 1988 |
| Huidige bestemming | woonruimte |
| Onderhoud binnen | goed |
| Onderhoud buiten | goed |
| Voorzieningen | mechanische ventilatie, tv kabel |
| Isolatie | dakisolatie, muurisolatie, vloerisolatie, dubbel glas |
Energie
| Energielabel | C |
| Verwarming | cv ketel |
| Warm water | cv ketel |
| C.V.-ketel | gas gestookte combi-ketel uit 2021 van Remeha Avanta, eigendom |
Oppervlakten en inhoud
| Woonoppervlakte | 126 m² |
| Perceeloppervlakte | 219 m² |
| Inhoud | 437 m³ |
| Bergruimte oppervlakte | 5 m² |
Indeling
| Aantal kamers | 4 |
| Aantal slaapkamers | 2 |
Buitenruimte
| Ligging | in woonwijk |
| Tuin | achtertuin met een oppervlakte van 98 m² en is gelegen op het zuidwesten |
Bergruimte
| Parkeergelegenheid | openbaar parkeren, op eigen terrein |
| Schuur/berging | vrijstaand hout |
Media
IK WIL EEN BEZICHTIGING AANVRAGEN
Laat je gegevens achter en wij nemen contact met je op om een bezichtiging in te plannen














































