Willem Kloosstraat 2
3202 XJ Spijkenisse
verkocht onder voorbehoud
Interesse in deze woning?
Laurens helpt je graag verder! Neem contact met ons op.
Omschrijving
Sfeervolle uitgebouwde eengezinswoning op een zonnig perceel van 256 m² eigen grond!
Deze charmante eengezinswoning met uitbouw is gelegen op een royaal perceel van maar liefst 256 m² eigen grond en heeft een heerlijke zonligging op het zuidoosten. De woning bevindt zich in de rustige en kindvriendelijke wijk Schiekamp, aan een doodlopende straat met een speeltuin direct voor de deur – ideaal voor gezinnen!
De woning beschikt over een lichte en sfeervolle woonkamer, drie slaapkamers en een zonnige tuin. In de directe omgeving vindt u diverse voorzieningen zoals winkels, openbaar vervoer, scholen en een meubelboulevard. Kortom: een fijne en complete woonomgeving!
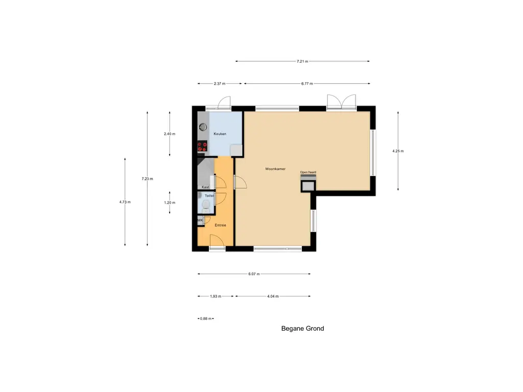
Begane grond: Entree/hal met meterkast, toiletruimte, vaste kast en trapopgang naar de eerste verdieping. De uitgebouwde woonkamer is heerlijk licht dankzij de grote raampartijen aan de voor-, zij- en achterzijde. De gashaard zorgt voor extra sfeer en via de openslaande deuren bereikt u de zonnige tuin. De dichte keuken bevindt zich aan de achterzijde en is uitgevoerd in een praktische dubbele wandopstelling, voorzien van een inductiekookplaat, afzuigkap, combi-oven en koel-/vriescombinatie. De gehele begane grond is afgewerkt met een fraaie houten vloer.
1e Verdieping: Overloop met toegang tot drie slaapkamers en de badkamer. Slaapkamer 1 (voorzijde) met toegang tot het balkon. Slaapkamer 2 (voorzijde) met aansluiting voor wasmachine en droger. Slaapkamer 3 (achterzijde, grootste kamer) voorzien van airconditioning De badkamer is volledig betegeld en uitgerust met een douchecabine, tweede toilet en wastafelmeubel. Via de overloop bereikt u middels een vlizotrap de ruime bergzolder.
2e verdieping: Grote bergzolder bereikbaar via een vlizotrap, met opstelplaats voor de cv-ketel. De zolder biedt de mogelijkheid om te worden omgebouwd tot een extra kamer.
Tuin: De woning beschikt over een voor-, zij- én achtertuin met meerdere terrassen, waardoor u altijd een fijne plek in de zon of schaduw kunt vinden. De achtertuin is gelegen op het zuidoosten en daardoor heerlijk zonnig.
Aan de achtergevel is een groot elektrisch zonnescherm geplaatst. Achterin de tuin bevindt zich een stenen berging en de tuin is tevens bereikbaar via een handige achterom.
Bijzonderheden
- Energielabel E
- Uitbouw gerealiseerd in 2000
- 3 slaapkamers
- Mogelijkheid tot nokverhoging
- Gelegen op 256 m² eigen grond
- Airconditioning aanwezig
- Deels voorzien van elektrische screens en elektrisch zonnescherm
- Buitenschilderwerk uitgevoerd in 2023
- Oplevering in overleg, kan spoedig
Lees meer
Deze charmante eengezinswoning met uitbouw is gelegen op een royaal perceel van maar liefst 256 m² eigen grond en heeft een heerlijke zonligging op het zuidoosten. De woning bevindt zich in de rustige en kindvriendelijke wijk Schiekamp, aan een doodlopende straat met een speeltuin direct voor de deur – ideaal voor gezinnen!
De woning beschikt over een lichte en sfeervolle woonkamer, drie slaapkamers en een zonnige tuin. In de directe omgeving vindt u diverse voorzieningen zoals winkels, openbaar vervoer, scholen en een meubelboulevard. Kortom: een fijne en complete woonomgeving!
Begane grond: Entree/hal met meterkast, toiletruimte, vaste kast en trapopgang naar de eerste verdieping. De uitgebouwde woonkamer is heerlijk licht dankzij de grote raampartijen aan de voor-, zij- en achterzijde. De gashaard zorgt voor extra sfeer en via de openslaande deuren bereikt u de zonnige tuin. De dichte keuken bevindt zich aan de achterzijde en is uitgevoerd in een praktische dubbele wandopstelling, voorzien van een inductiekookplaat, afzuigkap, combi-oven en koel-/vriescombinatie. De gehele begane grond is afgewerkt met een fraaie houten vloer.
1e Verdieping: Overloop met toegang tot drie slaapkamers en de badkamer. Slaapkamer 1 (voorzijde) met toegang tot het balkon. Slaapkamer 2 (voorzijde) met aansluiting voor wasmachine en droger. Slaapkamer 3 (achterzijde, grootste kamer) voorzien van airconditioning De badkamer is volledig betegeld en uitgerust met een douchecabine, tweede toilet en wastafelmeubel. Via de overloop bereikt u middels een vlizotrap de ruime bergzolder.
2e verdieping: Grote bergzolder bereikbaar via een vlizotrap, met opstelplaats voor de cv-ketel. De zolder biedt de mogelijkheid om te worden omgebouwd tot een extra kamer.
Tuin: De woning beschikt over een voor-, zij- én achtertuin met meerdere terrassen, waardoor u altijd een fijne plek in de zon of schaduw kunt vinden. De achtertuin is gelegen op het zuidoosten en daardoor heerlijk zonnig.
Aan de achtergevel is een groot elektrisch zonnescherm geplaatst. Achterin de tuin bevindt zich een stenen berging en de tuin is tevens bereikbaar via een handige achterom.
Bijzonderheden
- Energielabel E
- Uitbouw gerealiseerd in 2000
- 3 slaapkamers
- Mogelijkheid tot nokverhoging
- Gelegen op 256 m² eigen grond
- Airconditioning aanwezig
- Deels voorzien van elektrische screens en elektrisch zonnescherm
- Buitenschilderwerk uitgevoerd in 2023
- Oplevering in overleg, kan spoedig
Kenmerken
Overdracht
| Vraagprijs | € 425.000,- k.k. |
| Status | verkocht onder voorbehoud |
| Aanvaarding | in overleg |
Bouw
| Soort woning | woonhuis |
| Soort woonhuis | eengezinswoning |
| Type woonhuis | hoekwoning |
| Aantal woonlagen | 3 |
| Bouwvorm | bestaande bouw |
| Bouwjaar | 1959 |
| Huidige bestemming | woonruimte |
| Onderhoud binnen | goed |
| Onderhoud buiten | goed |
| Isolatie | dakisolatie, vloerisolatie |
Energie
| Energielabel | E |
| Verwarming | cv ketel |
| Warm water | cv ketel, elektrische boiler eigendom |
| C.V.-ketel | combi-ketel, eigendom |
Oppervlakten en inhoud
| Woonoppervlakte | 98 m² |
| Perceeloppervlakte | 256 m² |
| Inhoud | 423 m³ |
| Inpandigeruimte oppervlakte | 19 m² |
| Bergruimte oppervlakte | 8 m² |
| Buitenruimte oppervlakte | 3 m² |
Indeling
| Aantal kamers | 4 |
| Aantal slaapkamers | 3 |
Buitenruimte
| Ligging | in woonwijk |
| Tuin | achtertuin met een oppervlakte van 128 m² en is gelegen op het zuidoosten |
Bergruimte
| Garage | geen garage |
| Parkeergelegenheid | openbaar parkeren |
| Schuur/berging | vrijstaand steen |
Media
IK WIL EEN BEZICHTIGING AANVRAGEN
Laat je gegevens achter en wij nemen contact met je op om een bezichtiging in te plannen









































