Vlinderveen 558
3205 EN Spijkenisse
beschikbaar
€ 249.900,- k.k.
Interesse in deze woning?
Laurens helpt je graag verder! Neem contact met ons op.
Omschrijving
Goed onderhouden 2-kamer hoekmaisonnette in de geliefde wijk Waterland
Op zoek naar een lichte en verzorgde woning met nét dat beetje extra? Deze charmante hoekmaisonnette biedt een royale woonkamer, twee dakkapellen, nette keuken en badkamer, twee balkons én een fijne ligging nabij alle voorzieningen. Hier woon je comfortabel, rustig en toch dicht bij alles wat je dagelijks nodig hebt.
De woning ligt op loopafstand van winkelcentrum Waterland, metrostation Heemraadlaan en diverse sportfaciliteiten. Een ideale locatie voor wie gemak en bereikbaarheid belangrijk vindt.
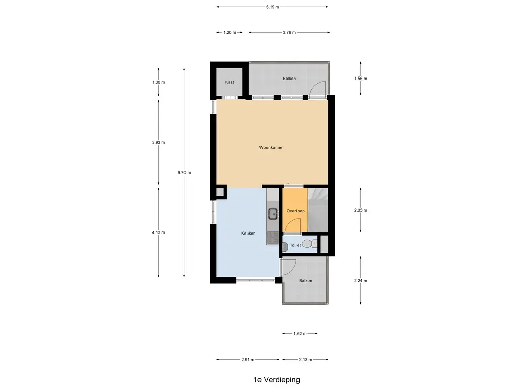
1e Verdieping: Entree/hal met meterkast, garderoberuimte en de trapopgang naar de woonverdieping.
2e Verdieping: Vanaf de overloop bereik je het separate toilet, de woonkamer en de trap naar boven. De ruime L-vormige woonkamer van ca. 34 m² is heerlijk licht dankzij de hoekligging en biedt een prettige indeling met een aparte nis—ideaal als werkplek of speelhoek. Vanuit de woonkamer heb je toegang tot twee balkons, gelegen op het oosten én het westen, zodat je zowel van de ochtend- als avondzon kunt genieten.
De keuken, geplaatst in wandopstelling, is uitgerust met een gaskookplaat, afzuigkap, koel-/vriescombinatie en oven.
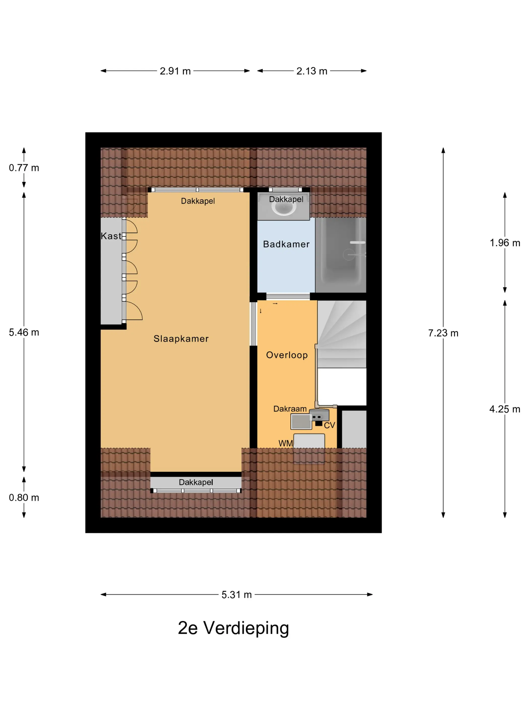
3e Verdieping: Overloop met opstelplaats voor de CV-ketel en de aansluiting voor de wasmachine. De ruime slaapkamer is voorzien van twee dakkapellen en een grote vaste kast. De moderne badkamer (2018) is ingericht met een ligbad, meubel met waskom en een handdoekenradiator.
Kenmerken:
- Energielabel C
- Stenen berging.
- Slaapkamer vergroot door twee dakkapellen
- Twee balkons (oost en west)
- Badkamer vernieuwd in 2018
- Actieve VvE, bijdrage € 75,- p/m
Oplevering in overleg, kan snel
Lees meer
Op zoek naar een lichte en verzorgde woning met nét dat beetje extra? Deze charmante hoekmaisonnette biedt een royale woonkamer, twee dakkapellen, nette keuken en badkamer, twee balkons én een fijne ligging nabij alle voorzieningen. Hier woon je comfortabel, rustig en toch dicht bij alles wat je dagelijks nodig hebt.
De woning ligt op loopafstand van winkelcentrum Waterland, metrostation Heemraadlaan en diverse sportfaciliteiten. Een ideale locatie voor wie gemak en bereikbaarheid belangrijk vindt.
1e Verdieping: Entree/hal met meterkast, garderoberuimte en de trapopgang naar de woonverdieping.
2e Verdieping: Vanaf de overloop bereik je het separate toilet, de woonkamer en de trap naar boven. De ruime L-vormige woonkamer van ca. 34 m² is heerlijk licht dankzij de hoekligging en biedt een prettige indeling met een aparte nis—ideaal als werkplek of speelhoek. Vanuit de woonkamer heb je toegang tot twee balkons, gelegen op het oosten én het westen, zodat je zowel van de ochtend- als avondzon kunt genieten.
De keuken, geplaatst in wandopstelling, is uitgerust met een gaskookplaat, afzuigkap, koel-/vriescombinatie en oven.
3e Verdieping: Overloop met opstelplaats voor de CV-ketel en de aansluiting voor de wasmachine. De ruime slaapkamer is voorzien van twee dakkapellen en een grote vaste kast. De moderne badkamer (2018) is ingericht met een ligbad, meubel met waskom en een handdoekenradiator.
Kenmerken:
- Energielabel C
- Stenen berging.
- Slaapkamer vergroot door twee dakkapellen
- Twee balkons (oost en west)
- Badkamer vernieuwd in 2018
- Actieve VvE, bijdrage € 75,- p/m
Oplevering in overleg, kan snel
Kenmerken
Overdracht
| Vraagprijs | € 249.900,- k.k. |
| Status | beschikbaar |
| Aanvaarding | in overleg |
| VVE checklist | niet aanwezig |
Bouw
| Soort woning | appartement |
| Soort appartement | maisonnette |
| Aantal woonlagen | 2 |
| Woonlaag | 1 |
| Bouwvorm | bestaande bouw |
| Bouwjaar | 1977 |
| Open portiek | nee |
| Huidige bestemming | woonruimte |
| Onderhoud binnen | goed |
| Onderhoud buiten | goed |
| Voorzieningen | rolluiken |
| Isolatie | gedeeltelijk dubbel glas |
Energie
| Energielabel | C |
| Verwarming | cv ketel |
| Warm water | cv ketel |
| C.V.-ketel | gas gestookte combi-ketel uit 2007 van Intergas HR, eigendom |
Oppervlakten en inhoud
| Woonoppervlakte | 74 m² |
| Bergruimte oppervlakte | 3 m² |
| Buitenruimte oppervlakte | 11 m² |
Indeling
| Aantal kamers | 3 |
| Aantal slaapkamers | 2 |
Buitenruimte
| Ligging | aan rustige weg, in woonwijk |
Bergruimte
| Parkeergelegenheid | openbaar parkeren |
| Schuur/berging | vrijstaand steen |
Media
IK WIL EEN BEZICHTIGING AANVRAGEN
Laat je gegevens achter en wij nemen contact met je op om een bezichtiging in te plannen

























