Uranusstraat 13D
3204 XN Spijkenisse
verkocht onder voorbehoud
Interesse in deze woning?
Laurens helpt je graag verder! Neem contact met ons op.
Omschrijving
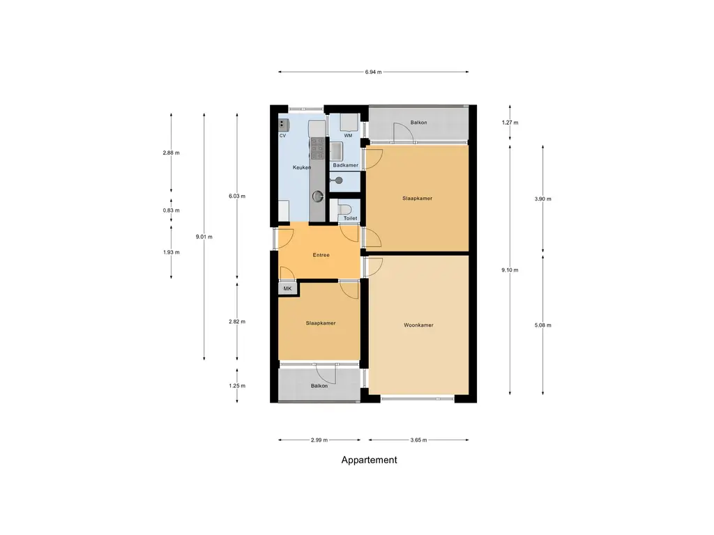
Licht, ruim en instapklaar – dit fijne 3-kamer appartement met twee balkons ligt in het geliefde Sterrenkwartier. Een rustige, groene wijk waar je alle voorzieningen binnen handbereik hebt: winkels, scholen en openbaar vervoer liggen op loopafstand. Ideaal voor wie comfortabel wil wonen op een centrale plek.
Via de afgesloten entree met intercom bereik je het nette trappenhuis en op de begane grond beschik je over een eigen berging van circa 9 m² – perfect voor fietsen, een scooter of extra opslag.
Op de 4e verdieping stap je de woning binnen in een verzorgde hal met meterkast, modern zwevend toilet en een handige bergkast. De lichte woonkamer is direct een prettige verrassing: dankzij de grote ramen valt er veel daglicht binnen en geniet je van een vrij uitzicht over de wijk. De ruimte heeft een fijne indeling en een rustige uitstraling, waardoor je hier moeiteloos je eigen sfeer kunt creëren.
De keuken grenst aan de woonkamer en is uitgevoerd in een praktische wandopstelling v.v. losse apparatuur en de opstelling van de cv-combiketel (1999).
Het appartement beschikt over twee slaapkamers én toegang tot een eigen balkon. Het balkon aan de oostzijde vangt de eerste zonnestralen van de dag, terwijl je op het westbalkon heerlijk kunt genieten van de avondzon – zo heb je altijd een plekje in de zon.
De badkamer (grotendeels gerenoveerd in 2025) is compact maar functioneel ingedeeld met een douchecabine, wastafelmeubel en aansluiting voor de wasmachine. De woning is grotendeels voorzien van een nette laminaatvloer en houten kozijnen, deels met dubbele beglazing.
Het complex ligt aan een rustige straat met voldoende gratis parkeergelegenheid. De Vereniging van Eigenaars is actief en er is een verduurzaamheidsplan in ontwikkeling – een prettige gedachte voor de toekomst.
Kortom: een licht en ruim appartement met twee balkons, een grote berging en een centrale ligging in een rustige, groene wijk.
Bijzonderheden:
- Energielabel G
- Grote berging ca. 9 m²
- Twee balkons (oost en west)
- VvE-bijdrage ca. € 235,- p.m.
- VvE met verduurzaamheidsplan in ontwikkeling
- Houten kozijnen deels voorzien van dubbele beglazing / geschilderd in 2025
- Gratis parkeren in de straat
- Nabij winkels, OV en scholen
- Oplevering half februari 2026
Lees meer
Via de afgesloten entree met intercom bereik je het nette trappenhuis en op de begane grond beschik je over een eigen berging van circa 9 m² – perfect voor fietsen, een scooter of extra opslag.
Op de 4e verdieping stap je de woning binnen in een verzorgde hal met meterkast, modern zwevend toilet en een handige bergkast. De lichte woonkamer is direct een prettige verrassing: dankzij de grote ramen valt er veel daglicht binnen en geniet je van een vrij uitzicht over de wijk. De ruimte heeft een fijne indeling en een rustige uitstraling, waardoor je hier moeiteloos je eigen sfeer kunt creëren.
De keuken grenst aan de woonkamer en is uitgevoerd in een praktische wandopstelling v.v. losse apparatuur en de opstelling van de cv-combiketel (1999).
Het appartement beschikt over twee slaapkamers én toegang tot een eigen balkon. Het balkon aan de oostzijde vangt de eerste zonnestralen van de dag, terwijl je op het westbalkon heerlijk kunt genieten van de avondzon – zo heb je altijd een plekje in de zon.
De badkamer (grotendeels gerenoveerd in 2025) is compact maar functioneel ingedeeld met een douchecabine, wastafelmeubel en aansluiting voor de wasmachine. De woning is grotendeels voorzien van een nette laminaatvloer en houten kozijnen, deels met dubbele beglazing.
Het complex ligt aan een rustige straat met voldoende gratis parkeergelegenheid. De Vereniging van Eigenaars is actief en er is een verduurzaamheidsplan in ontwikkeling – een prettige gedachte voor de toekomst.
Kortom: een licht en ruim appartement met twee balkons, een grote berging en een centrale ligging in een rustige, groene wijk.
Bijzonderheden:
- Energielabel G
- Grote berging ca. 9 m²
- Twee balkons (oost en west)
- VvE-bijdrage ca. € 235,- p.m.
- VvE met verduurzaamheidsplan in ontwikkeling
- Houten kozijnen deels voorzien van dubbele beglazing / geschilderd in 2025
- Gratis parkeren in de straat
- Nabij winkels, OV en scholen
- Oplevering half februari 2026
Kenmerken
Overdracht
| Vraagprijs | € 245.000,- k.k. |
| Status | verkocht onder voorbehoud |
| Aanvaarding | per datum |
| VVE checklist | niet aanwezig |
Bouw
| Soort woning | appartement |
| Soort appartement | portiekflat |
| Aantal woonlagen | 4 |
| Woonlaag | 4 |
| Bouwvorm | bestaande bouw |
| Bouwjaar | 1969 |
| Open portiek | nee |
| Huidige bestemming | woonruimte |
| Onderhoud binnen | goed |
| Onderhoud buiten | goed |
Energie
| Energielabel | G |
| Verwarming | cv ketel |
| Warm water | cv ketel |
| C.V.-ketel | gas gestookte combi-ketel uit 1999 van AWB, eigendom |
Oppervlakten en inhoud
| Woonoppervlakte | 62 m² |
| Bergruimte oppervlakte | 9 m² |
| Buitenruimte oppervlakte | 8 m² |
Indeling
| Aantal kamers | 3 |
| Aantal slaapkamers | 2 |
Buitenruimte
| Ligging | aan park, in woonwijk |
Bergruimte
| Parkeergelegenheid | openbaar parkeren |
| Schuur/berging | box |
Media
IK WIL EEN BEZICHTIGING AANVRAGEN
Laat je gegevens achter en wij nemen contact met je op om een bezichtiging in te plannen
























