Uranusstraat 11B
3204 XN Spijkenisse
verkocht onder voorbehoud
Interesse in deze woning?
Laurens helpt je graag verder! Neem contact met ons op.
Omschrijving
Ruim en licht 4-kamer appartement met twee balkons, nette afwerking en een centrale ligging nabij park en voorzieningen!
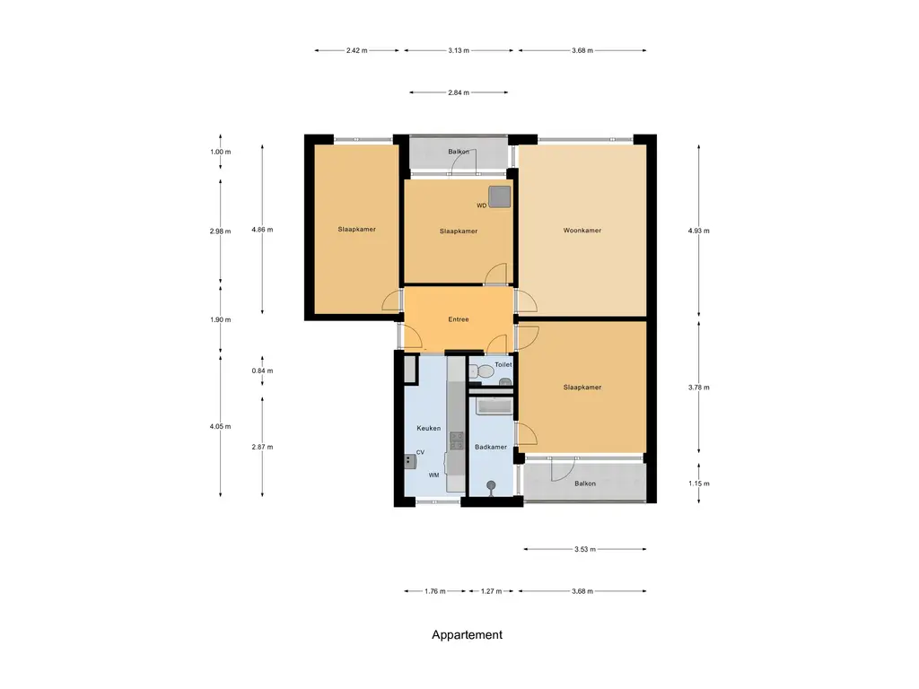
Ben je op zoek naar een comfortabel en goed onderhouden appartement op een fijne locatie? Dan is dit ruime 4-kamer appartement op de 2e verdieping absoluut een bezichtiging waard! Met maar liefst twee zonnige balkons, een nette keuken en badkamer én een praktische indeling, biedt deze woning alles wat je nodig hebt voor prettig wonen. Daarnaast woon je hier op korte afstand van het park, winkels, openbaar vervoer en diverse andere voorzieningen.
Begane grond: Verzorgde, gezamenlijke entree met bellentableau, brievenbussen en toegang tot het trappenhuis. Vanuit hier bereik je tevens de ruime privéberging in de onderbouw.
2e verdieping: Via de ruime hal, voorzien van airconditioning, heb je toegang tot alle vertrekken van de woning. De lichte woonkamer vormt het hart van het appartement en staat in directe verbinding met een aangrenzende slaapkamer. Vanuit deze kamer stap je zo het royale balkon op het oosten op — een heerlijke plek om de dag te beginnen met een kop koffie in de ochtendzon.
De badkamer is netjes afgewerkt, volledig betegeld en uitgerust met een douche en een wastafelmeubel.
De dichte keuken is praktisch ingericht in een wandopstelling en beschikt over diverse inbouwapparatuur, waaronder een gaskookplaat, oven, vaatwasser, koel-/vriescombinatie en afzuigkap. Tevens vind je hier de aansluiting voor de wasmachine en de opstelplaats van de CV-combiketel.
Aan de achterzijde van het appartement bevinden zich nog twee ruime slaapkamers. Eén van deze kamers biedt toegang tot het tweede balkon, gelegen op het westen — ideaal om te genieten van de middag- en avondzon. Verder beschikt de woning over een separaat toilet.
Bijzonderheden
- Ruim en licht 4-kamer appartement met praktische indeling
- Twee balkons op het oosten én westen
- Nette keuken en badkamer
- Ruime berging in de onderbouw
- Voorzien van dubbel glas
- Actieve VvE, bijdrage ca. € 280,-- per maand
Lees meer
Ben je op zoek naar een comfortabel en goed onderhouden appartement op een fijne locatie? Dan is dit ruime 4-kamer appartement op de 2e verdieping absoluut een bezichtiging waard! Met maar liefst twee zonnige balkons, een nette keuken en badkamer én een praktische indeling, biedt deze woning alles wat je nodig hebt voor prettig wonen. Daarnaast woon je hier op korte afstand van het park, winkels, openbaar vervoer en diverse andere voorzieningen.
Begane grond: Verzorgde, gezamenlijke entree met bellentableau, brievenbussen en toegang tot het trappenhuis. Vanuit hier bereik je tevens de ruime privéberging in de onderbouw.
2e verdieping: Via de ruime hal, voorzien van airconditioning, heb je toegang tot alle vertrekken van de woning. De lichte woonkamer vormt het hart van het appartement en staat in directe verbinding met een aangrenzende slaapkamer. Vanuit deze kamer stap je zo het royale balkon op het oosten op — een heerlijke plek om de dag te beginnen met een kop koffie in de ochtendzon.
De badkamer is netjes afgewerkt, volledig betegeld en uitgerust met een douche en een wastafelmeubel.
De dichte keuken is praktisch ingericht in een wandopstelling en beschikt over diverse inbouwapparatuur, waaronder een gaskookplaat, oven, vaatwasser, koel-/vriescombinatie en afzuigkap. Tevens vind je hier de aansluiting voor de wasmachine en de opstelplaats van de CV-combiketel.
Aan de achterzijde van het appartement bevinden zich nog twee ruime slaapkamers. Eén van deze kamers biedt toegang tot het tweede balkon, gelegen op het westen — ideaal om te genieten van de middag- en avondzon. Verder beschikt de woning over een separaat toilet.
Bijzonderheden
- Ruim en licht 4-kamer appartement met praktische indeling
- Twee balkons op het oosten én westen
- Nette keuken en badkamer
- Ruime berging in de onderbouw
- Voorzien van dubbel glas
- Actieve VvE, bijdrage ca. € 280,-- per maand
Kenmerken
Overdracht
| Vraagprijs | € 275.000,- k.k. |
| Status | verkocht onder voorbehoud |
| Aanvaarding | in overleg |
| VVE checklist | niet aanwezig |
Bouw
| Soort woning | appartement |
| Soort appartement | portiekflat |
| Aantal woonlagen | 4 |
| Woonlaag | 2 |
| Bouwvorm | bestaande bouw |
| Bouwjaar | 1969 |
| Open portiek | nee |
| Huidige bestemming | woonruimte |
| Onderhoud binnen | goed |
| Onderhoud buiten | goed |
Energie
| Energielabel | C |
| Verwarming | cv ketel |
| Warm water | cv ketel |
| C.V.-ketel | gas gestookte combi-ketel uit 2012 van Mitsubishi, eigendom |
Oppervlakten en inhoud
| Woonoppervlakte | 74 m² |
| Bergruimte oppervlakte | 7 m² |
| Buitenruimte oppervlakte | 7 m² |
Indeling
| Aantal kamers | 4 |
| Aantal slaapkamers | 3 |
Buitenruimte
| Ligging | aan park, in woonwijk |
Bergruimte
| Garage | geen garage |
| Schuur/berging | box |
Media
IK WIL EEN BEZICHTIGING AANVRAGEN
Laat je gegevens achter en wij nemen contact met je op om een bezichtiging in te plannen























