Theo Mann-Bouwmeesterstraat 150
3207 VS Spijkenisse
verkocht onder voorbehoud
Interesse in deze woning?
Laurens helpt je graag verder! Neem contact met ons op.
Omschrijving
Leuke, goed onderhouden en verrassend ruime eengezinswoning op een fijne locatie!
Deze moderne woning is helemaal klaar voor de toekomst: volledig voorzien van kunststof kozijnen met HR++ glas, een vernieuwd dak (2018), 12 zonnepanelen én twee airco’s voor optimaal comfort het hele jaar door. Met een stijlvolle badkamer uit 2021, een diepe zonnige tuin én een royale kelder is dit een ideale woning voor wie comfortabel en zorgeloos wil wonen.
Gelegen op loopafstand van winkelcentrum Maaswijk, openbaar vervoer en scholen, woon je hier heerlijk centraal in een rustige, kindvriendelijke buurt.
Kelder: Via een vaste trap bereik je de ruime kelder (ca. 15 m²) met volledige stahoogte. Ideaal als hobbyruimte, provisiekamer of extra opslag.
Begane grond: Binnenkomst in de lichte hal met modern zwevend toilet, meterkast en trapopgang. De tuingerichte woonkamer is voorzien van houten vloerdelen, airco en een brede kunststof schuifpui naar de diepe, zonnige achtertuin op het zuiden. Hier vind je een stenen berging en een praktische achterom.
De keuken aan de voorzijde is uitgevoerd in een dubbele wandopstelling en uitgerust met o.a. een gasfornuis met grote oven, koelkast, vriezer, vaatwasser, magnetron en afzuigkap — een fijne plek voor de kookliefhebber.
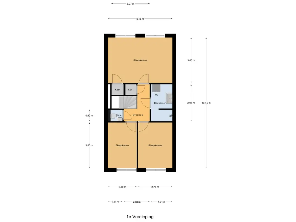
1e verdieping: Ruime overloop met lichtkoepel. Drie goed bemeten slaapkamers, allemaal voorzien van een nette laminaatvloer; de hoofdslaapkamer beschikt bovendien over airconditioning. Een modern separaat toilet en een frisse badkamer, volledig betegeld en uitgerust met inloopdouche, wastafelmeubel en wasmachineaansluiting. Daarnaast is er een aparte ruimte met CV-combiketel (Intergas, 2022, lease).
Kenmerken:
- Energielabel A+
- Moderne badkamer (2021)
- 2 moderne toiletten
- Kelder van ca. 15 m² met stahoogte
- 12 zonnepanelen (2022)
- 2 airco’s (2023)
- Volledig kunststof kozijnen met HR++ glas (2020/2021)
- Diepe, zonnige tuin op het zuiden
- Nieuw dak (2018)
- Oplevering in overleg
Lees meer
Deze moderne woning is helemaal klaar voor de toekomst: volledig voorzien van kunststof kozijnen met HR++ glas, een vernieuwd dak (2018), 12 zonnepanelen én twee airco’s voor optimaal comfort het hele jaar door. Met een stijlvolle badkamer uit 2021, een diepe zonnige tuin én een royale kelder is dit een ideale woning voor wie comfortabel en zorgeloos wil wonen.
Gelegen op loopafstand van winkelcentrum Maaswijk, openbaar vervoer en scholen, woon je hier heerlijk centraal in een rustige, kindvriendelijke buurt.
Kelder: Via een vaste trap bereik je de ruime kelder (ca. 15 m²) met volledige stahoogte. Ideaal als hobbyruimte, provisiekamer of extra opslag.
Begane grond: Binnenkomst in de lichte hal met modern zwevend toilet, meterkast en trapopgang. De tuingerichte woonkamer is voorzien van houten vloerdelen, airco en een brede kunststof schuifpui naar de diepe, zonnige achtertuin op het zuiden. Hier vind je een stenen berging en een praktische achterom.
De keuken aan de voorzijde is uitgevoerd in een dubbele wandopstelling en uitgerust met o.a. een gasfornuis met grote oven, koelkast, vriezer, vaatwasser, magnetron en afzuigkap — een fijne plek voor de kookliefhebber.
1e verdieping: Ruime overloop met lichtkoepel. Drie goed bemeten slaapkamers, allemaal voorzien van een nette laminaatvloer; de hoofdslaapkamer beschikt bovendien over airconditioning. Een modern separaat toilet en een frisse badkamer, volledig betegeld en uitgerust met inloopdouche, wastafelmeubel en wasmachineaansluiting. Daarnaast is er een aparte ruimte met CV-combiketel (Intergas, 2022, lease).
Kenmerken:
- Energielabel A+
- Moderne badkamer (2021)
- 2 moderne toiletten
- Kelder van ca. 15 m² met stahoogte
- 12 zonnepanelen (2022)
- 2 airco’s (2023)
- Volledig kunststof kozijnen met HR++ glas (2020/2021)
- Diepe, zonnige tuin op het zuiden
- Nieuw dak (2018)
- Oplevering in overleg
Kenmerken
Overdracht
| Vraagprijs | € 395.000,- k.k. |
| Status | verkocht onder voorbehoud |
| Aanvaarding | in overleg |
Bouw
| Soort woning | woonhuis |
| Soort woonhuis | eengezinswoning |
| Type woonhuis | tussenwoning |
| Aantal woonlagen | 3 |
| Bouwvorm | bestaande bouw |
| Bouwjaar | 1996 |
| Huidige bestemming | woonruimte |
| Onderhoud binnen | goed |
| Onderhoud buiten | goed |
| Voorzieningen | mechanische ventilatie, buitenzonwering, zonnepanelen |
| Isolatie | dakisolatie, muurisolatie, vloerisolatie, dubbel glas |
Energie
| Energielabel | A++ |
| Verwarming | cv ketel |
| Warm water | cv ketel |
| C.V.-ketel | gas gestookte combi-ketel uit 2022 van Intergas, lease |
Oppervlakten en inhoud
| Woonoppervlakte | 105 m² |
| Perceeloppervlakte | 127 m² |
| Inhoud | 393 m³ |
| Inpandigeruimte oppervlakte | 12 m² |
| Bergruimte oppervlakte | 7 m² |
Indeling
| Aantal kamers | 4 |
| Aantal slaapkamers | 3 |
Buitenruimte
| Ligging | in woonwijk, beschutte ligging |
| Tuin | achtertuin met een oppervlakte van 57 m² en is gelegen op het zuiden |
Bergruimte
| Parkeergelegenheid | openbaar parkeren |
| Schuur/berging | vrijstaand steen |
Media
IK WIL EEN BEZICHTIGING AANVRAGEN
Laat je gegevens achter en wij nemen contact met je op om een bezichtiging in te plannen































