Tamusdonk 6
3206 BM Spijkenisse
beschikbaar
€ 339.900,- k.k.
Interesse in deze woning?
Laurens helpt je graag verder! Neem contact met ons op.
Omschrijving
Sfeervolle en goed onderhouden eengezinswoning met moderne afwerking en zonnige tuin!
Welkom aan de Tamusdonk 6, een instapklare eengezinswoning die met zorg is onderhouden en voorzien van tal van moderne gemakken. Deze woning combineert comfort, energiezuinigheid en een fijne ligging in een kindvriendelijke wijk.
Begane grond: Via de entree met modern toilet kom je in de lichte, tuingerichte woonkamer. Dankzij de grote schuifpui staat de ruimte in direct contact met de prachtige, afsluitbare overkapping/tuinkamer (geplaatst in 2021), een heerlijke plek om het hele jaar door van het buitenleven te genieten. De achtertuin, gelegen op het zonnige zuidoosten, biedt veel privacy en nodigt uit tot ontspannen. De gehele begane grond is voorzien van vloerverwarming, terwijl de open haard (gashaard) zorgt voor extra warmte en sfeer tijdens koelere dagen. Aan de voorzijde bevindt zich de moderne, halfopen keuken, uitgerust met diverse inbouwapparatuur, waaronder een kookplaat, combi-oven, klimaatkast, koelkast, vaatwasser en Quooker. Een stijlvolle en praktische plek waar koken een echt plezier is.
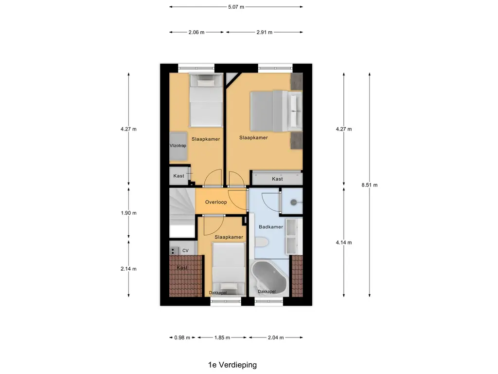
Eerste verdieping: De overloop geeft toegang tot drie slaapkamers, waarvan twee aan de achterzijde en één aan de voorzijde. De slaapkamer aan de voorzijde beschikt over een dakkapel, wat zorgt voor extra ruimte en veel lichtinval. Ook de badkamer aan de voorzijde is voorzien van een dakkapel, waardoor deze opvallend ruim en licht is. De moderne badkamer is uitgerust met een dubbele wastafel, douche, toilet en whirlpool, een heerlijke plek om te ontspannen na een lange dag.
Via de overloop is met een vlizotrap de zolder bereikbaar, ideaal voor extra bergruimte.
Bijzonderheden:
- Gehele begane grond voorzien van vloerverwarming (4 groepen)
- Tuingerichte woonkamer met schuifpui naar tuinkamer voorzien van verlichting en terrasverwarmer (2021)
- Moderne keuken en ruime badkamer
- Zonnige tuin op het zuidoosten
- Energiezuinig door zonnepanelen en kunststof kozijnen met HR++ glas
- 9 zonnepanelen
- CV-ketel (Vaillant, 2020)
- Boiler (2023)
- Gevels gereinigd en geïmpregneerd, voegen vervangen (2021)
- Nieuwe dakpannen (2022)
- Nieuwe groepenkast (2025)
- Wateronthardingssysteem (Omega, 2025)
- Inlight sfeerverlichting in voor- en achtertuin
- Oplevering in overleg
gietvloer
2020 dak vervangen bitumen
plafond agnesplaten
Lees meer
Welkom aan de Tamusdonk 6, een instapklare eengezinswoning die met zorg is onderhouden en voorzien van tal van moderne gemakken. Deze woning combineert comfort, energiezuinigheid en een fijne ligging in een kindvriendelijke wijk.
Begane grond: Via de entree met modern toilet kom je in de lichte, tuingerichte woonkamer. Dankzij de grote schuifpui staat de ruimte in direct contact met de prachtige, afsluitbare overkapping/tuinkamer (geplaatst in 2021), een heerlijke plek om het hele jaar door van het buitenleven te genieten. De achtertuin, gelegen op het zonnige zuidoosten, biedt veel privacy en nodigt uit tot ontspannen. De gehele begane grond is voorzien van vloerverwarming, terwijl de open haard (gashaard) zorgt voor extra warmte en sfeer tijdens koelere dagen. Aan de voorzijde bevindt zich de moderne, halfopen keuken, uitgerust met diverse inbouwapparatuur, waaronder een kookplaat, combi-oven, klimaatkast, koelkast, vaatwasser en Quooker. Een stijlvolle en praktische plek waar koken een echt plezier is.
Eerste verdieping: De overloop geeft toegang tot drie slaapkamers, waarvan twee aan de achterzijde en één aan de voorzijde. De slaapkamer aan de voorzijde beschikt over een dakkapel, wat zorgt voor extra ruimte en veel lichtinval. Ook de badkamer aan de voorzijde is voorzien van een dakkapel, waardoor deze opvallend ruim en licht is. De moderne badkamer is uitgerust met een dubbele wastafel, douche, toilet en whirlpool, een heerlijke plek om te ontspannen na een lange dag.
Via de overloop is met een vlizotrap de zolder bereikbaar, ideaal voor extra bergruimte.
Bijzonderheden:
- Gehele begane grond voorzien van vloerverwarming (4 groepen)
- Tuingerichte woonkamer met schuifpui naar tuinkamer voorzien van verlichting en terrasverwarmer (2021)
- Moderne keuken en ruime badkamer
- Zonnige tuin op het zuidoosten
- Energiezuinig door zonnepanelen en kunststof kozijnen met HR++ glas
- 9 zonnepanelen
- CV-ketel (Vaillant, 2020)
- Boiler (2023)
- Gevels gereinigd en geïmpregneerd, voegen vervangen (2021)
- Nieuwe dakpannen (2022)
- Nieuwe groepenkast (2025)
- Wateronthardingssysteem (Omega, 2025)
- Inlight sfeerverlichting in voor- en achtertuin
- Oplevering in overleg
gietvloer
2020 dak vervangen bitumen
plafond agnesplaten
Kenmerken
Overdracht
| Vraagprijs | € 339.900,- k.k. |
| Status | beschikbaar |
| Aanvaarding | per datum |
Bouw
| Soort woning | woonhuis |
| Soort woonhuis | eengezinswoning |
| Type woonhuis | tussenwoning |
| Aantal woonlagen | 3 |
| Bouwvorm | bestaande bouw |
| Bouwjaar | 1981 |
| Huidige bestemming | woonruimte |
| Onderhoud binnen | goed |
| Onderhoud buiten | goed |
| Isolatie | dakisolatie, muurisolatie |
Energie
| Energielabel | C |
| Verwarming | cv ketel, vloerverwarming gedeeltelijk |
| Warm water | cv ketel |
| C.V.-ketel | gas gestookte combi-ketel uit 2020 van Vaillant, eigendom |
Oppervlakten en inhoud
| Woonoppervlakte | 85 m² |
| Perceeloppervlakte | 122 m² |
| Inhoud | 310 m³ |
| Buitenruimte oppervlakte | 14 m² |
Indeling
| Aantal kamers | 4 |
| Aantal slaapkamers | 3 |
Buitenruimte
| Ligging | in woonwijk |
| Tuin | achtertuin met een oppervlakte van 30 m² en is gelegen op het zuidoosten |
Bergruimte
| Parkeergelegenheid | openbaar parkeren |
| Schuur/berging | aangebouwd steen |
Media
IK WIL EEN BEZICHTIGING AANVRAGEN
Laat je gegevens achter en wij nemen contact met je op om een bezichtiging in te plannen










































