Snoekenveen 864
3205 CZ Spijkenisse
verkocht onder voorbehoud
Interesse in deze woning?
Laurens helpt je graag verder! Neem contact met ons op.
Omschrijving
Op een rustige locatie in de populaire wijk Waterland ligt deze uitstekend onderhouden maisonnette woning met een heerlijk zonnig dakterras op het westen. De woning is sfeervol ingericht en beschikt over een lichte woonkamer, een nette open keuken (2023) met diverse inbouwapparatuur, een moderne badkamer (2025) en een ruime slaapkamer. Daarnaast beschikt de woning over een eigen berging op de begane grond.
1e Verdieping: Via de buitentrap bereik je de entree. Bij binnenkomst kom je in de hal met garderoberuimte en een praktische trapkast waarin de wasmachine en de cv-combiketel (2016) netjes staan opgesteld. Vanuit hier bereik je via de trap de woonverdieping.
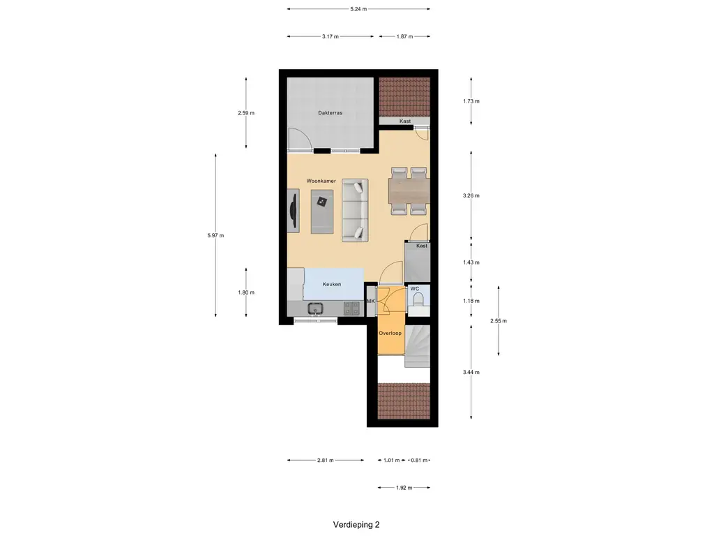
2e Verdieping: Hal met meterkast, een groot dakraam, licht gesausde wanden en een laminaatvloer. Hier bevinden zich tevens het moderne toilet met fonteintje en de toegang tot de woonkamer. De sfeervolle en lichte woonkamer van circa 30 m² is voorzien van een laminaatvloer en strak afgewerkte wanden en biedt via een deur toegang tot het zonnige dakterras. De open keuken (2023) is uitgevoerd in een praktische L-opstelling en beschikt over diverse inbouwapparatuur, waaronder een koelkast, gaskookplaat, RVS afzuigschouw, vaatwasser, oven en magnetron.
Het dakterras van circa 8m² is gunstig gelegen op het westen en biedt voldoende privacy. Een fijne plek om heerlijk van de middag- en avondzon te genieten.
Via een vaste trap bereik je de tweede verdieping met een overloop voorzien van een grote schuifkastenwand en een laminaatvloer. Hier bevinden zich de ruime slaapkamer en de moderne badkamer. De slaapkamer van circa 17 m² heeft een rechte geveloptrek, waardoor het mogelijk is om indien gewenst een tweede slaapkamer te creëren. Daarnaast is er praktische bergruimte aanwezig achter de knieschotten. De moderne badkamer is volledig betegeld en voorzien van een wastafel met meubel en een ruime inloopdouche met regendouche.
De woning is gunstig gelegen op loopafstand van het winkelcentrum, openbaar vervoer en diverse andere voorzieningen.
Kenmerken:
- Energielabel B
- Volledig voorzien van dubbele beglazing
- Parkeermogelijkheden op het pleintje voor de deur
- VvE-bijdrage € 132,50 per maand
- Keuken (2023)
- Badkamer (2025)
Lees meer
1e Verdieping: Via de buitentrap bereik je de entree. Bij binnenkomst kom je in de hal met garderoberuimte en een praktische trapkast waarin de wasmachine en de cv-combiketel (2016) netjes staan opgesteld. Vanuit hier bereik je via de trap de woonverdieping.
2e Verdieping: Hal met meterkast, een groot dakraam, licht gesausde wanden en een laminaatvloer. Hier bevinden zich tevens het moderne toilet met fonteintje en de toegang tot de woonkamer. De sfeervolle en lichte woonkamer van circa 30 m² is voorzien van een laminaatvloer en strak afgewerkte wanden en biedt via een deur toegang tot het zonnige dakterras. De open keuken (2023) is uitgevoerd in een praktische L-opstelling en beschikt over diverse inbouwapparatuur, waaronder een koelkast, gaskookplaat, RVS afzuigschouw, vaatwasser, oven en magnetron.
Het dakterras van circa 8m² is gunstig gelegen op het westen en biedt voldoende privacy. Een fijne plek om heerlijk van de middag- en avondzon te genieten.
Via een vaste trap bereik je de tweede verdieping met een overloop voorzien van een grote schuifkastenwand en een laminaatvloer. Hier bevinden zich de ruime slaapkamer en de moderne badkamer. De slaapkamer van circa 17 m² heeft een rechte geveloptrek, waardoor het mogelijk is om indien gewenst een tweede slaapkamer te creëren. Daarnaast is er praktische bergruimte aanwezig achter de knieschotten. De moderne badkamer is volledig betegeld en voorzien van een wastafel met meubel en een ruime inloopdouche met regendouche.
De woning is gunstig gelegen op loopafstand van het winkelcentrum, openbaar vervoer en diverse andere voorzieningen.
Kenmerken:
- Energielabel B
- Volledig voorzien van dubbele beglazing
- Parkeermogelijkheden op het pleintje voor de deur
- VvE-bijdrage € 132,50 per maand
- Keuken (2023)
- Badkamer (2025)
Kenmerken
Overdracht
| Vraagprijs | € 275.000,- k.k. |
| Status | verkocht onder voorbehoud |
| Aanvaarding | in overleg |
| VVE checklist | niet aanwezig |
Bouw
| Soort woning | appartement |
| Soort appartement | maisonnette |
| Aantal woonlagen | 3 |
| Woonlaag | 2 |
| Bouwvorm | bestaande bouw |
| Bouwjaar | 1978 |
| Open portiek | nee |
| Huidige bestemming | woonruimte |
| Onderhoud binnen | goed |
| Onderhoud buiten | goed |
| Voorzieningen | tv kabel |
| Isolatie | gedeeltelijk dubbel glas |
Energie
| Energielabel | B |
| Verwarming | cv ketel |
| Warm water | cv ketel |
| C.V.-ketel | gas gestookte combi-ketel uit 2016, eigendom |
Oppervlakten en inhoud
| Woonoppervlakte | 70 m² |
| Bergruimte oppervlakte | 3 m² |
| Buitenruimte oppervlakte | 8 m² |
Indeling
| Aantal kamers | 2 |
| Aantal slaapkamers | 1 |
Buitenruimte
| Ligging | in woonwijk |
Bergruimte
| Garage | geen garage |
| Parkeergelegenheid | openbaar parkeren |
| Schuur/berging | aangebouwd steen |
Media
IK WIL EEN BEZICHTIGING AANVRAGEN
Laat je gegevens achter en wij nemen contact met je op om een bezichtiging in te plannen

























