Ring 38a
3227 AS Oudenhoorn
beschikbaar
€ 650.000,- k.k.
Interesse in deze woning?
Laurens helpt je graag verder! Neem contact met ons op.
Omschrijving
Goed onderhouden vrijstaande woning met garage en royale tuin in Oudenhoorn.
Ben je op zoek naar een vrijstaande, instapklare woning met volop ruimte, rust én comfort? Deze uitstekend onderhouden woning ligt in het landelijke en geliefde Voorne aan Zee, op korte afstand van scholen, winkels, stranden, natuurgebieden en diverse fiets- en wandelroutes.
De woning beschikt onder meer over een lichte L-vormige woonkamer, een woonkeuken, drie slaapkamers (waarvan één op de begane grond), twee badkamers, een ruime garage, een oprit met plek voor twee auto’s én een fraai aangelegde tuin rondom met meerdere terrassen.
Indeling
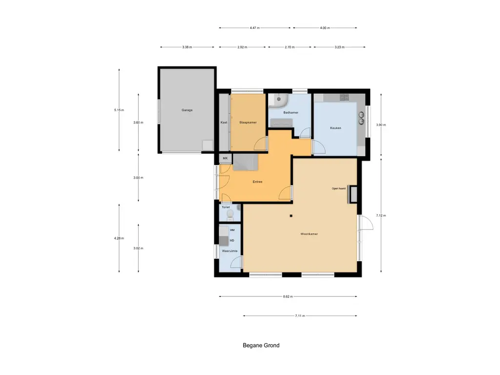
Begane grond
Entree via een ruime hal met meterkast en toegang tot de woonkamer, woonkeuken en het toilet. De lichte L-vormige living is voorzien van een sfeervolle haard (elektrisch) en schuifpui naar de tuin. Aan de achterzijde bevindt zich de royale woonkeuken in hoekopstelling, voorzien van diverse inbouwapparatuur.
Op de begane grond vind je tevens een comfortabele slaapkamer en een nette badkamer met douchecabine en wastafelmeubel.
De rondom gelegen tuin is fraai aangelegd, biedt volop privacy en beschikt over meerdere terrassen voor elk moment van de dag. Via een elektrisch bedienbaar hek bereik je de oprit met plaats voor twee auto’s én de garage.
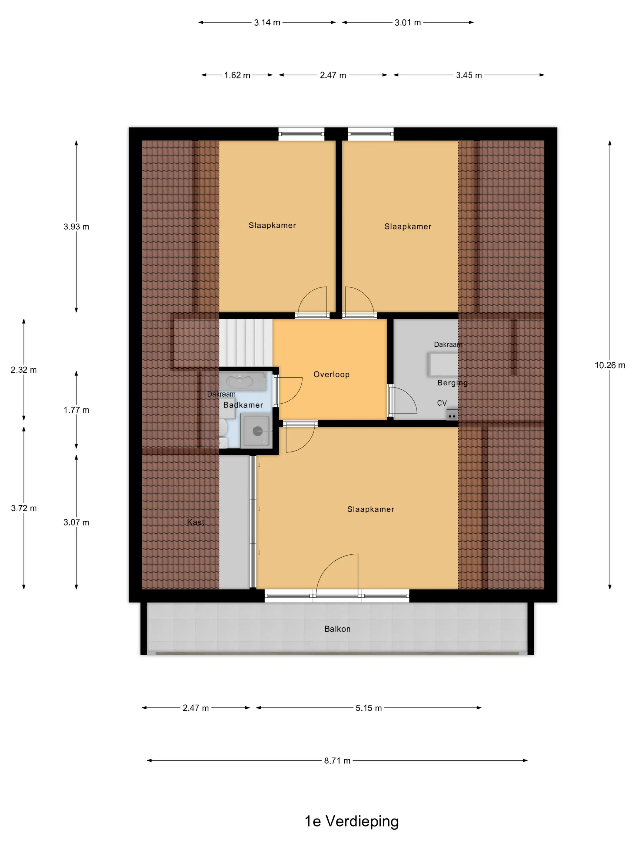
Eerste verdieping
Overloop met toegang tot de tweede badkamer en drie slaapkamers, waarvan de slaapkamer met een ruim balkon. Verder is er voldoende opbergruimte.
Bijzonderheden
- Goed onderhouden binnen én buiten
- Ruime oprit met elektrisch hek en parkeergelegenheid op eigen terrein
- Badkamer en slaapkamer op de begane grond
Oplevering in overleg.
Lees meer
Ben je op zoek naar een vrijstaande, instapklare woning met volop ruimte, rust én comfort? Deze uitstekend onderhouden woning ligt in het landelijke en geliefde Voorne aan Zee, op korte afstand van scholen, winkels, stranden, natuurgebieden en diverse fiets- en wandelroutes.
De woning beschikt onder meer over een lichte L-vormige woonkamer, een woonkeuken, drie slaapkamers (waarvan één op de begane grond), twee badkamers, een ruime garage, een oprit met plek voor twee auto’s én een fraai aangelegde tuin rondom met meerdere terrassen.
Indeling
Begane grond
Entree via een ruime hal met meterkast en toegang tot de woonkamer, woonkeuken en het toilet. De lichte L-vormige living is voorzien van een sfeervolle haard (elektrisch) en schuifpui naar de tuin. Aan de achterzijde bevindt zich de royale woonkeuken in hoekopstelling, voorzien van diverse inbouwapparatuur.
Op de begane grond vind je tevens een comfortabele slaapkamer en een nette badkamer met douchecabine en wastafelmeubel.
De rondom gelegen tuin is fraai aangelegd, biedt volop privacy en beschikt over meerdere terrassen voor elk moment van de dag. Via een elektrisch bedienbaar hek bereik je de oprit met plaats voor twee auto’s én de garage.
Eerste verdieping
Overloop met toegang tot de tweede badkamer en drie slaapkamers, waarvan de slaapkamer met een ruim balkon. Verder is er voldoende opbergruimte.
Bijzonderheden
- Goed onderhouden binnen én buiten
- Ruime oprit met elektrisch hek en parkeergelegenheid op eigen terrein
- Badkamer en slaapkamer op de begane grond
Oplevering in overleg.
Kenmerken
Overdracht
| Koopsom | € 650.000,- k.k. |
| Status | beschikbaar |
| Aanvaarding | in overleg |
Bouw
| Soort woning | woonhuis |
| Soort woonhuis | eengezinswoning |
| Type woonhuis | vrijstaande woning |
| Aantal woonlagen | 2 |
| Bouwvorm | bestaande bouw |
| Bouwjaar | 1979 |
| Huidige bestemming | woonruimte |
| Onderhoud binnen | goed |
| Onderhoud buiten | goed |
| Voorzieningen | tv kabel, buitenzonwering, schuifpui |
Energie
| Energielabel | C |
| Verwarming | cv ketel |
| Warm water | cv ketel |
| C.V.-ketel | gas gestookte combi-ketel uit 2020, eigendom |
Oppervlakten en inhoud
| Woonoppervlakte | 155 m² |
| Perceeloppervlakte | 414 m² |
| Inhoud | 612 m³ |
| Inpandigeruimte oppervlakte | 17 m² |
Indeling
| Aantal kamers | 4 |
| Aantal slaapkamers | 4 |
Buitenruimte
| Tuin | tuin rondom |
Bergruimte
| Parkeergelegenheid | openbaar parkeren, op eigen terrein |
| Schuur/berging | vrijstaand hout |
Media
IK WIL EEN BEZICHTIGING AANVRAGEN
Laat je gegevens achter en wij nemen contact met je op om een bezichtiging in te plannen


























































