Ribesstraat 12
3203 XN Spijkenisse
beschikbaar
€ 409.900,- k.k.
Interesse in deze woning?
Laurens helpt je graag verder! Neem contact met ons op.
Omschrijving
Gemoderniseerde tussenwoning met zonnige tuin en dakterras.
Ben je op zoek naar een woning waar je zó in kunt? Een thuis waar privacy, comfort en een kindvriendelijke omgeving samenkomen? Dan is deze moderne tussenwoning precies wat je zoekt. Met een zonnige tuin op het westen (met achterom), een heerlijk dakterras, een vernieuwde keuken én badkamer (2022), vijf airco’s en een prachtige serre, voelt dit huis als thuiskomen.
Gelegen aan een autovrije straat met volop speelruimte voor kinderen woon je hier rustig, veilig en toch dichtbij alles: winkels, scholen, natuur, openbaar vervoer (bus en metro) en dagelijkse voorzieningen liggen allemaal op loopafstand. Een fijne woning op een fijne plek precies zoals je het wilt.
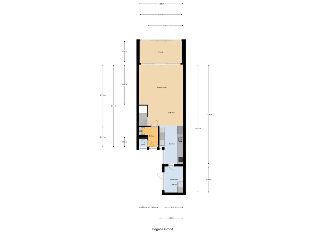
Begane grond: Via de entree met garderobe en modern zwevend toilet stap je binnen in de royale, lichte woonkamer. De strakke PVC-visgraatvloer met vloerverwarming, de dichte trap en de brede schuifpui geven de ruimte een luxe uitstraling. ’s Avonds zorgt de moderne lichtkoof met smartverlichting voor een sfeervolle setting: van filmavond tot cosy relaxmoment.
Achter de schuifpui ligt de afsluitbare serre/tuinkamer een heerlijke plek in het voor- én najaar. De achtertuin, met ligging op het westen, is bereikbaar via een achterom die direct aansluit op een speeltuin.
De open keuken aan de voorzijde is strak uitgevoerd in zwart/wit en volledig uitgerust met hoogwaardige inbouwapparatuur: een BORA-inductiekookplaat met geïntegreerde afzuiging, oven, magnetron, vaatwasser, koel-/vriescombinatie, heetwaterkraan én een knusse koffiecorner. Via de keuken bereik je de praktische bijkeuken, momenteel ingericht als wasruimte.
Eerste verdieping: De overloop biedt toegang tot twee ruime slaapkamers (ca. 5×3,5 m en 2,5×3 m), beide voorzien van rolluiken. De master bedroom beschikt bovendien over een compacte walk-in closet.
De moderne badkamer (2022) is een echte blikvanger: een inloopdouche, fraai wastafelmeubel, tweede zwevend toilet, elektrisch verwarmde vloer én een heerlijk ligbad met bubbels pure ontspanning!
Tweede verdieping: Vanaf de overloop stap je zo het royale dakterras op het westen op een perfecte plek om ’s avonds van de zon te genieten. De twee slaapkamers (eveneens vernieuwd in 2022) zijn voorzien van airco; de kamer aan de achterzijde heeft een rolluik en een directe verbinding met het dakterras. Aan de voorzijde zorgen twee dakramen voor veel licht en frisse lucht. Hier vind je ook de CV-opstelling en extra aansluitingen voor wasmachine en droger.
Kenmerken:
- Energielabel C
- Dak en spouwisolatie
- 5 Airco's (koelen en verwarmen)
- Moderne keuken en badkamer
- Gedeeltelijk kunststof kozijnen met HR++ glas
- Zonnige tuin én dakterras (beide op het westen)
- Glazen serre/tuinkamer
- Rustige, kindvriendelijke ligging aan autovrij voetpad
- Oplevering in overleg, met mogelijke Sell & Lease-Back voor 3 à 4 maanden (meer informatie via Kompas Makelaar)
Een moderne, comfortabele woning vol licht, ruimte en luxe – op een plek waar kinderen nog veilig kunnen spelen.
Laat deze kans niet aan u voorbijgaan!
Lees meer
Ben je op zoek naar een woning waar je zó in kunt? Een thuis waar privacy, comfort en een kindvriendelijke omgeving samenkomen? Dan is deze moderne tussenwoning precies wat je zoekt. Met een zonnige tuin op het westen (met achterom), een heerlijk dakterras, een vernieuwde keuken én badkamer (2022), vijf airco’s en een prachtige serre, voelt dit huis als thuiskomen.
Gelegen aan een autovrije straat met volop speelruimte voor kinderen woon je hier rustig, veilig en toch dichtbij alles: winkels, scholen, natuur, openbaar vervoer (bus en metro) en dagelijkse voorzieningen liggen allemaal op loopafstand. Een fijne woning op een fijne plek precies zoals je het wilt.
Begane grond: Via de entree met garderobe en modern zwevend toilet stap je binnen in de royale, lichte woonkamer. De strakke PVC-visgraatvloer met vloerverwarming, de dichte trap en de brede schuifpui geven de ruimte een luxe uitstraling. ’s Avonds zorgt de moderne lichtkoof met smartverlichting voor een sfeervolle setting: van filmavond tot cosy relaxmoment.
Achter de schuifpui ligt de afsluitbare serre/tuinkamer een heerlijke plek in het voor- én najaar. De achtertuin, met ligging op het westen, is bereikbaar via een achterom die direct aansluit op een speeltuin.
De open keuken aan de voorzijde is strak uitgevoerd in zwart/wit en volledig uitgerust met hoogwaardige inbouwapparatuur: een BORA-inductiekookplaat met geïntegreerde afzuiging, oven, magnetron, vaatwasser, koel-/vriescombinatie, heetwaterkraan én een knusse koffiecorner. Via de keuken bereik je de praktische bijkeuken, momenteel ingericht als wasruimte.
Eerste verdieping: De overloop biedt toegang tot twee ruime slaapkamers (ca. 5×3,5 m en 2,5×3 m), beide voorzien van rolluiken. De master bedroom beschikt bovendien over een compacte walk-in closet.
De moderne badkamer (2022) is een echte blikvanger: een inloopdouche, fraai wastafelmeubel, tweede zwevend toilet, elektrisch verwarmde vloer én een heerlijk ligbad met bubbels pure ontspanning!
Tweede verdieping: Vanaf de overloop stap je zo het royale dakterras op het westen op een perfecte plek om ’s avonds van de zon te genieten. De twee slaapkamers (eveneens vernieuwd in 2022) zijn voorzien van airco; de kamer aan de achterzijde heeft een rolluik en een directe verbinding met het dakterras. Aan de voorzijde zorgen twee dakramen voor veel licht en frisse lucht. Hier vind je ook de CV-opstelling en extra aansluitingen voor wasmachine en droger.
Kenmerken:
- Energielabel C
- Dak en spouwisolatie
- 5 Airco's (koelen en verwarmen)
- Moderne keuken en badkamer
- Gedeeltelijk kunststof kozijnen met HR++ glas
- Zonnige tuin én dakterras (beide op het westen)
- Glazen serre/tuinkamer
- Rustige, kindvriendelijke ligging aan autovrij voetpad
- Oplevering in overleg, met mogelijke Sell & Lease-Back voor 3 à 4 maanden (meer informatie via Kompas Makelaar)
Een moderne, comfortabele woning vol licht, ruimte en luxe – op een plek waar kinderen nog veilig kunnen spelen.
Laat deze kans niet aan u voorbijgaan!
Kenmerken
Overdracht
| Vraagprijs | € 409.900,- k.k. |
| Status | beschikbaar |
| Aanvaarding | in overleg |
Bouw
| Soort woning | woonhuis |
| Soort woonhuis | eengezinswoning |
| Type woonhuis | tussenwoning |
| Aantal woonlagen | 3 |
| Bouwvorm | bestaande bouw |
| Bouwjaar | 1972 |
| Huidige bestemming | woonruimte |
| Onderhoud binnen | goed |
| Onderhoud buiten | goed |
| Voorzieningen | airconditioning |
Energie
| Energielabel | C |
| Verwarming | cv ketel |
| Warm water | cv ketel |
| C.V.-ketel | combi-ketel, eigendom |
Oppervlakten en inhoud
| Woonoppervlakte | 118 m² |
| Perceeloppervlakte | 127 m² |
| Inhoud | 408 m³ |
| Buitenruimte oppervlakte | 11 m² |
Indeling
| Aantal kamers | 5 |
| Aantal slaapkamers | 4 |
Buitenruimte
| Ligging | in woonwijk |
| Tuin | achtertuin met een oppervlakte van 54 m² en is gelegen op het westen |
Bergruimte
| Parkeergelegenheid | openbaar parkeren |
| Schuur/berging | aangebouwd steen |
Media
IK WIL EEN BEZICHTIGING AANVRAGEN
Laat je gegevens achter en wij nemen contact met je op om een bezichtiging in te plannen





































