Polslandstraat 170B 02
3081 TX Rotterdam
verkocht onder voorbehoud
Interesse in deze woning?
Laurens helpt je graag verder! Neem contact met ons op.
Omschrijving
Instapklaar wonen in het bruisende Hart van Zuid!
Ben jij op zoek naar een betaalbare, instapklare woning in een levendige omgeving vol ontwikkeling? Dan is deze ruime bovenwoning aan de Polslandstraat precies wat je zoekt! De woning is in 2025 grotendeels gerenoveerd en biedt het comfort van nu, met een moderne keuken, stijlvolle badkamer en nieuwe kunststof kozijnen met dubbel glas (plaatsing gepland komende maand).
Wonen op een toplocatie
De Polslandstraat ligt in een rustige straat, maar toch vlak bij alles wat Rotterdam Zuid zo aantrekkelijk maakt. Het vernieuwde Hart van Zuid met Ahoy, het theater, de kunstfaciliteiten en het zwembad ligt op loopafstand. Ook het Zuidplein, Katendrecht, de Wilhelminakade en het Zuiderpark bereik je in een paar minuten. Daarnaast zijn er uitstekende verbindingen met het openbaar vervoer en de uitvalswegen (A15/A29).
Begane grond: Eigen opgang naar de eerste verdieping.
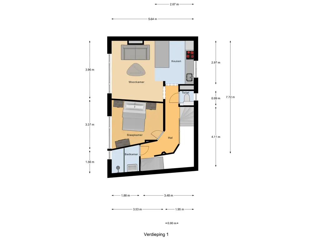
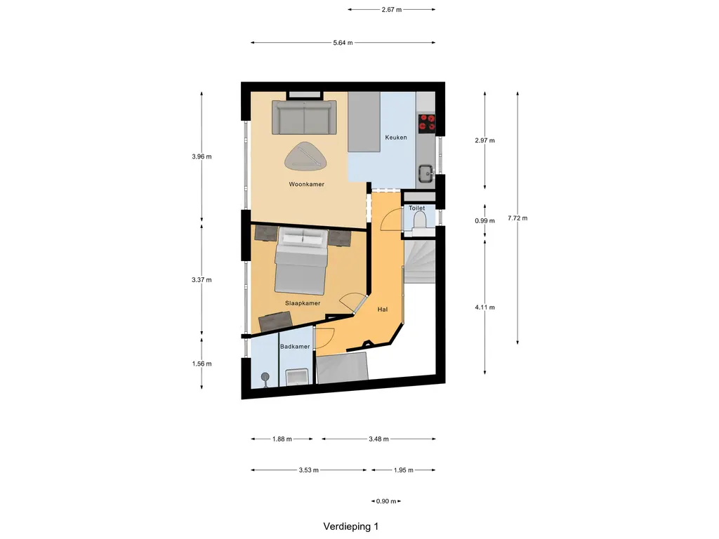
Tweede verdieping: Entree met hal, meterkast en toegang tot de eerste slaapkamer (of werkkamer) en een separaat toilet met fonteintje. De moderne badkamer (2025) is voorzien van een inloopdouche en een wastafelmeubel. De lichte woonkamer is strak afgewerkt met laminaatvloer en gladde wanden. De open keuken (2025) heeft een stijlvolle wandopstelling en is uitgerust met een inductiekookplaat, afzuigkap, combi-oven, koelkast, vriezer en een gezellig kookeiland waar je kunt tafelen of borrelen.
Derde verdieping: Via de interne trap bereik je de bovenste verdieping met een ruime hoofdslaapkamer, eveneens voorzien van laminaatvloer en strakke afwerking.
Bijzonderheden
- Bouwjaar: 1935
- Woonoppervlakte: ca. 63 m²
- Eigen grond
- Grotendeels gerenoveerd in 2025
- Volledig voorzien van dubbele beglazing en kunststof kozijnen (gaat aankomende maand gebeuren)
- Rustig, maar zeer centraal gelegen
- Oplevering kan spoedig plaatsvinden
Lees meer
Ben jij op zoek naar een betaalbare, instapklare woning in een levendige omgeving vol ontwikkeling? Dan is deze ruime bovenwoning aan de Polslandstraat precies wat je zoekt! De woning is in 2025 grotendeels gerenoveerd en biedt het comfort van nu, met een moderne keuken, stijlvolle badkamer en nieuwe kunststof kozijnen met dubbel glas (plaatsing gepland komende maand).
Wonen op een toplocatie
De Polslandstraat ligt in een rustige straat, maar toch vlak bij alles wat Rotterdam Zuid zo aantrekkelijk maakt. Het vernieuwde Hart van Zuid met Ahoy, het theater, de kunstfaciliteiten en het zwembad ligt op loopafstand. Ook het Zuidplein, Katendrecht, de Wilhelminakade en het Zuiderpark bereik je in een paar minuten. Daarnaast zijn er uitstekende verbindingen met het openbaar vervoer en de uitvalswegen (A15/A29).
Begane grond: Eigen opgang naar de eerste verdieping.
Tweede verdieping: Entree met hal, meterkast en toegang tot de eerste slaapkamer (of werkkamer) en een separaat toilet met fonteintje. De moderne badkamer (2025) is voorzien van een inloopdouche en een wastafelmeubel. De lichte woonkamer is strak afgewerkt met laminaatvloer en gladde wanden. De open keuken (2025) heeft een stijlvolle wandopstelling en is uitgerust met een inductiekookplaat, afzuigkap, combi-oven, koelkast, vriezer en een gezellig kookeiland waar je kunt tafelen of borrelen.
Derde verdieping: Via de interne trap bereik je de bovenste verdieping met een ruime hoofdslaapkamer, eveneens voorzien van laminaatvloer en strakke afwerking.
Bijzonderheden
- Bouwjaar: 1935
- Woonoppervlakte: ca. 63 m²
- Eigen grond
- Grotendeels gerenoveerd in 2025
- Volledig voorzien van dubbele beglazing en kunststof kozijnen (gaat aankomende maand gebeuren)
- Rustig, maar zeer centraal gelegen
- Oplevering kan spoedig plaatsvinden
Kenmerken
Overdracht
| Vraagprijs | € 249.900,- k.k. |
| Status | verkocht onder voorbehoud |
| Aanvaarding | direct |
| VVE checklist | niet aanwezig |
Bouw
| Soort woning | appartement |
| Soort appartement | bovenwoning |
| Aantal woonlagen | 2 |
| Woonlaag | 3 |
| Bouwvorm | bestaande bouw |
| Bouwjaar | 1935 |
| Open portiek | nee |
| Huidige bestemming | woonruimte |
| Onderhoud binnen | goed |
| Onderhoud buiten | goed |
Energie
| Energielabel | F |
| Verwarming | cv ketel |
| Warm water | cv ketel |
Oppervlakten en inhoud
| Woonoppervlakte | 63 m² |
Indeling
| Aantal kamers | 3 |
| Aantal slaapkamers | 2 |
Buitenruimte
| Ligging | aan rustige weg, in woonwijk, beschutte ligging |
Bergruimte
| Parkeergelegenheid | openbaar parkeren, betaald parkeren, parkeervergunningen |
Media
IK WIL EEN BEZICHTIGING AANVRAGEN
Laat je gegevens achter en wij nemen contact met je op om een bezichtiging in te plannen




















