Pampasgras 15
3206 RD Spijkenisse
verkocht onder voorbehoud
Interesse in deze woning?
Laurens helpt je graag verder! Neem contact met ons op.
Omschrijving
Ruime, betaalbare eengezinswoning met zonnige tuin en 4 slaapkamers!
Gelegen in een rustige en kindvriendelijke woonwijk, nabij scholen, openbaar vervoer en een winkelcentrum, mogen wij u deze verrassend ruime en betaalbare eengezinswoning aanbieden. De woning beschikt over een zonnige, op het zuid-oosten gelegen tuin met aluminium overkapping — een heerlijke plek om het hele jaar door van het buitenleven te genieten!
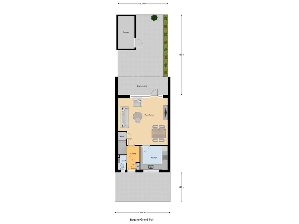
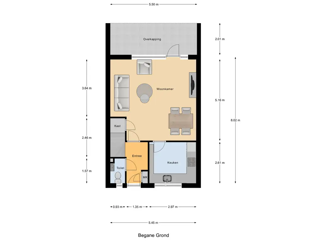
Begane grond: U betreedt de woning via de entree/hal met meterkast, toiletruimte en trapopgang naar de eerste verdieping. De lichte woonkamer is voorzien van een praktische trap-/bergkast, een fraaie laminaatvloer en een deur naar de achtertuin. De tuin beschikt over een aluminium overkapping, een berging en een handige achterom — ideaal voor fietsen en tuinspullen. De keuken is gesitueerd aan de voorzijde van de woning en uitgevoerd in een hoekopstelling, voorzien van een gaskookplaat, afzuigkap, koelkast en combi-magnetron.
Eerste verdieping: Overloop met toegang tot drie slaapkamers, allen voorzien van een laminaatvloer. De badkamer is compleet uitgevoerd met een douche, wastafelmeubel, tweede toilet en aansluiting voor de wasmachine.
Tweede verdieping Voorzolder met knieschotten en opstelling van de cv-installatie. Hier bevindt zich tevens de ruime vierde slaapkamer met laminaatvloer en dakraam — ideaal als slaapkamer, werkkamer of hobbyruimte.
Bijzonderheden:
- Energielabel aanwezig
- Zonnige tuin op het zuid-oosten met aluminium overkapping
- 4 volwaardige slaapkamers
- Praktische indeling en veel bergruimte
- Oplevering in overleg
Kortom: een ideale gezinswoning met veel ruimte, een fijne tuin en een gunstige ligging nabij alle voorzieningen. Absoluut een bezichtiging waard!
Lees meer
Gelegen in een rustige en kindvriendelijke woonwijk, nabij scholen, openbaar vervoer en een winkelcentrum, mogen wij u deze verrassend ruime en betaalbare eengezinswoning aanbieden. De woning beschikt over een zonnige, op het zuid-oosten gelegen tuin met aluminium overkapping — een heerlijke plek om het hele jaar door van het buitenleven te genieten!
Begane grond: U betreedt de woning via de entree/hal met meterkast, toiletruimte en trapopgang naar de eerste verdieping. De lichte woonkamer is voorzien van een praktische trap-/bergkast, een fraaie laminaatvloer en een deur naar de achtertuin. De tuin beschikt over een aluminium overkapping, een berging en een handige achterom — ideaal voor fietsen en tuinspullen. De keuken is gesitueerd aan de voorzijde van de woning en uitgevoerd in een hoekopstelling, voorzien van een gaskookplaat, afzuigkap, koelkast en combi-magnetron.
Eerste verdieping: Overloop met toegang tot drie slaapkamers, allen voorzien van een laminaatvloer. De badkamer is compleet uitgevoerd met een douche, wastafelmeubel, tweede toilet en aansluiting voor de wasmachine.
Tweede verdieping Voorzolder met knieschotten en opstelling van de cv-installatie. Hier bevindt zich tevens de ruime vierde slaapkamer met laminaatvloer en dakraam — ideaal als slaapkamer, werkkamer of hobbyruimte.
Bijzonderheden:
- Energielabel aanwezig
- Zonnige tuin op het zuid-oosten met aluminium overkapping
- 4 volwaardige slaapkamers
- Praktische indeling en veel bergruimte
- Oplevering in overleg
Kortom: een ideale gezinswoning met veel ruimte, een fijne tuin en een gunstige ligging nabij alle voorzieningen. Absoluut een bezichtiging waard!
Kenmerken
Overdracht
| Vraagprijs | € 300.000,- k.k. |
| Status | verkocht onder voorbehoud |
| Aanvaarding | in overleg |
Bouw
| Soort woning | woonhuis |
| Soort woonhuis | eengezinswoning |
| Type woonhuis | tussenwoning |
| Aantal woonlagen | 3 |
| Bouwvorm | bestaande bouw |
| Bouwjaar | 1982 |
| Huidige bestemming | woonruimte |
| Onderhoud binnen | goed |
| Onderhoud buiten | goed |
| Voorzieningen | mechanische ventilatie, tv kabel |
| Isolatie | dakisolatie, muurisolatie, gedeeltelijk dubbel glas |
Energie
| Energielabel | B |
| Verwarming | cv ketel |
| Warm water | cv ketel |
| C.V.-ketel | combi-ketel, eigendom |
Oppervlakten en inhoud
| Woonoppervlakte | 108 m² |
| Perceeloppervlakte | 117 m² |
| Inhoud | 371 m³ |
| Bergruimte oppervlakte | 7 m² |
| Buitenruimte oppervlakte | 11 m² |
Indeling
| Aantal kamers | 5 |
| Aantal slaapkamers | 4 |
Buitenruimte
| Ligging | in woonwijk |
| Tuin | achtertuin met een oppervlakte van 48 m² en is gelegen op het zuidoosten |
Bergruimte
| Parkeergelegenheid | openbaar parkeren |
| Schuur/berging | vrijstaand steen |
Media
IK WIL EEN BEZICHTIGING AANVRAGEN
Laat je gegevens achter en wij nemen contact met je op om een bezichtiging in te plannen


































