Nijlstraat 30
3207 AL Spijkenisse
beschikbaar
€ 675.000,- k.k.
Interesse in deze woning?
Laurens helpt je graag verder! Neem contact met ons op.
Omschrijving
Instapklare 2-onder-1-kapwoning met garage en grote tuin!
Wat een plaatje van een woning! Deze échte 2-onder-1-kapwoning ligt op een royaal perceel van maar liefst 414 m² eigen grond en is eind 2018 volledig gemoderniseerd. Denk aan een luxe keuken, moderne badkamer, vloerverwarming, schuifpuien naar de tuin – alles is tot in de puntjes verzorgd. Hier hoef je echt alleen nog maar je spullen neer te zetten en te gaan wonen.
De woning is gelegen in een rustige, kindvriendelijke straat met uitsluitend twee-onder-een-kap- en vrijstaande woningen. Privacy, rust en ruimte staan hier centraal!
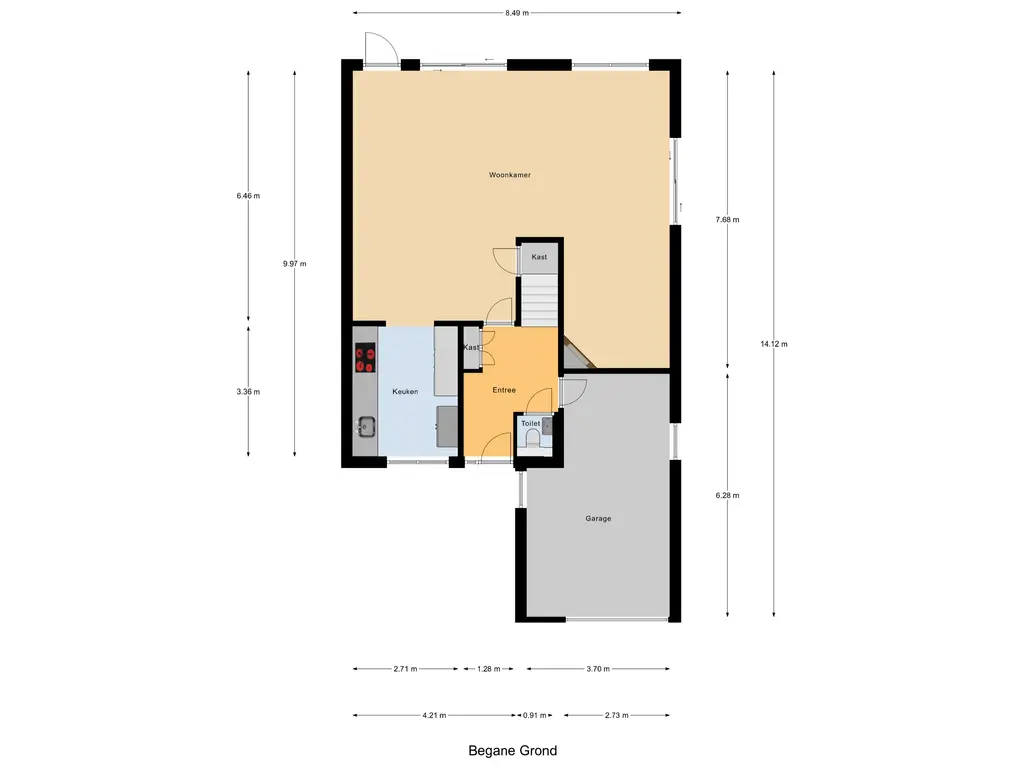
Begane grond: Via de entree kom je in de ruime hal met toegang tot de garage (ca. 21 m²) met elektrische deur, elektra en aansluitingen voor wasmachine en droger. Ook vind je hier het moderne toilet en de trapopgang.
De ruime U-vormige woonkamer (ca. 50 m²) is een heerlijke, lichte leefruimte met twee schuifpuien naar zowel de achter- als zijtuin. De luxe open keuken aan de voorzijde is geplaatst in 2018 en voorzien van alles wat je maar kunt wensen: een extra diep werkblad, 5-pits inductiekookplaat, XL-koel/vriescombinatie met ijs- en watertap, oven, combimagnetron, vaatwasser en een Quooker (defect).
De hele begane grond is afgewerkt met een prachtige grootformaat plavuizenvloer met vloerverwarming als hoofdverwarming.
Buiten vind je een fraai aangelegde voortuin met plek voor meerdere auto’s, een riante zijtuin en een gezellige mooi aangelegde achtertuin.
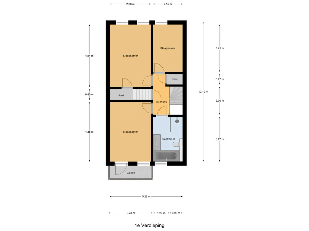
Eerste verdieping: Overloop met vaste kast, drie ruime slaapkamers (waarvan één met balkon) en een moderne badkamer (2018) met inloopdouche, duo-ligbad, tweede toilet, wastafelmeubel, spiegelkast en handdoekradiator. De gehele verdieping is voorzien van een mooie laminaatvloer.
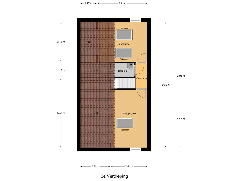
Tweede verdieping: Overloop met bergruimte en wastafel (2021), CV-combiketel (2019) en mechanische ventilatie (2018). Daarnaast vind je hier nog twee extra slaapkamers, beide voorzien van dakramen waardoor er veel daglicht binnenvalt. Ook deze verdieping heeft een nette laminaatvloer.
Kenmerken:
- Energielabel C
- Instapklaar eind 2018 volledig gemoderniseerd
- Royale woonkamer en grote garage
- Prachtig aangelegde tuin rondom
- Mogelijkheid voor werk-/praktijkruimte aan huis
- Parkeergelegenheid op eigen terrein voor meerdere auto’s
- Elektrisch zonnescherm en screen aan de achterzijde
- Oplevering in overleg
Lees meer
Wat een plaatje van een woning! Deze échte 2-onder-1-kapwoning ligt op een royaal perceel van maar liefst 414 m² eigen grond en is eind 2018 volledig gemoderniseerd. Denk aan een luxe keuken, moderne badkamer, vloerverwarming, schuifpuien naar de tuin – alles is tot in de puntjes verzorgd. Hier hoef je echt alleen nog maar je spullen neer te zetten en te gaan wonen.
De woning is gelegen in een rustige, kindvriendelijke straat met uitsluitend twee-onder-een-kap- en vrijstaande woningen. Privacy, rust en ruimte staan hier centraal!
Begane grond: Via de entree kom je in de ruime hal met toegang tot de garage (ca. 21 m²) met elektrische deur, elektra en aansluitingen voor wasmachine en droger. Ook vind je hier het moderne toilet en de trapopgang.
De ruime U-vormige woonkamer (ca. 50 m²) is een heerlijke, lichte leefruimte met twee schuifpuien naar zowel de achter- als zijtuin. De luxe open keuken aan de voorzijde is geplaatst in 2018 en voorzien van alles wat je maar kunt wensen: een extra diep werkblad, 5-pits inductiekookplaat, XL-koel/vriescombinatie met ijs- en watertap, oven, combimagnetron, vaatwasser en een Quooker (defect).
De hele begane grond is afgewerkt met een prachtige grootformaat plavuizenvloer met vloerverwarming als hoofdverwarming.
Buiten vind je een fraai aangelegde voortuin met plek voor meerdere auto’s, een riante zijtuin en een gezellige mooi aangelegde achtertuin.
Eerste verdieping: Overloop met vaste kast, drie ruime slaapkamers (waarvan één met balkon) en een moderne badkamer (2018) met inloopdouche, duo-ligbad, tweede toilet, wastafelmeubel, spiegelkast en handdoekradiator. De gehele verdieping is voorzien van een mooie laminaatvloer.
Tweede verdieping: Overloop met bergruimte en wastafel (2021), CV-combiketel (2019) en mechanische ventilatie (2018). Daarnaast vind je hier nog twee extra slaapkamers, beide voorzien van dakramen waardoor er veel daglicht binnenvalt. Ook deze verdieping heeft een nette laminaatvloer.
Kenmerken:
- Energielabel C
- Instapklaar eind 2018 volledig gemoderniseerd
- Royale woonkamer en grote garage
- Prachtig aangelegde tuin rondom
- Mogelijkheid voor werk-/praktijkruimte aan huis
- Parkeergelegenheid op eigen terrein voor meerdere auto’s
- Elektrisch zonnescherm en screen aan de achterzijde
- Oplevering in overleg
Kenmerken
Overdracht
| Vraagprijs | € 675.000,- k.k. |
| Status | beschikbaar |
| Aanvaarding | per datum |
Bouw
| Soort woning | woonhuis |
| Soort woonhuis | eengezinswoning |
| Type woonhuis | twee onder een kapwoning |
| Aantal woonlagen | 3 |
| Bouwvorm | bestaande bouw |
| Bouwjaar | 1987 |
| Huidige bestemming | woonruimte |
| Onderhoud binnen | goed |
| Onderhoud buiten | goed |
| Voorzieningen | mechanische ventilatie, tv kabel, schuifpui |
| Isolatie | dakisolatie, muurisolatie, vloerisolatie, dubbel glas |
Energie
| Energielabel | C |
| Verwarming | cv ketel |
| Warm water | cv ketel |
| C.V.-ketel | gas gestookte combi-ketel uit 2019 van Vaillant Ecotec Plus, eigendom |
Oppervlakten en inhoud
| Woonoppervlakte | 155 m² |
| Perceeloppervlakte | 414 m² |
| Inhoud | 434 m³ |
| Inpandigeruimte oppervlakte | 21 m² |
| Buitenruimte oppervlakte | 3 m² |
Indeling
| Aantal kamers | 6 |
| Aantal slaapkamers | 5 |
Buitenruimte
| Ligging | aan water, aan rustige weg, in woonwijk |
| Tuin | achtertuin met een oppervlakte van 120 m² en is gelegen op het zuiden |
Bergruimte
| Parkeergelegenheid | op eigen terrein |
| Schuur/berging | inpandig |
Media
IK WIL EEN BEZICHTIGING AANVRAGEN
Laat je gegevens achter en wij nemen contact met je op om een bezichtiging in te plannen












































