Madeliefstraat 17
3202 RM Spijkenisse
verkocht onder voorbehoud
Interesse in deze woning?
Laurens helpt je graag verder! Neem contact met ons op.
Omschrijving
Fijne hoekwoning met uitbouw, diepe zonnige tuin en garage met volop mogelijkheden!
Op een prettige en centrale locatie ligt deze nette 4-kamer hoekeengezinswoning met uitbouw, een diepe achtertuin op het zonnige zuidwesten en een vrijstaande garage met nok en bergvliering. Een ideale woning voor wie comfortabel wil wonen met volop ruimte én uitbreidingsmogelijkheden.
De woning is gelegen nabij het stadshart van Spijkenisse, winkels, openbaar vervoer, scholen en diverse groen- en recreatievoorzieningen. Hier woon je rustig, maar toch met alles binnen handbereik.
Begane grond: Entree via de hal met meterkast, toiletruimte en trapopgang naar de eerste verdieping. De lichte doorzonwoonkamer beschikt over een fraaie laminaatvloer en een extra zijraam, wat zorgt voor een prettige lichtinval.
De keuken is uitgevoerd in een praktische hoekopstelling. Vanuit de keuken bereik je de uitbouw, die volop mogelijkheden biedt – bijvoorbeeld voor het realiseren van een ruime woonkeuken.
Via de uitbouw heb je toegang tot de diepe en zonnige achtertuin op het zuidwesten. Achterin de tuin bevindt zich de vrijstaande garage met nok en bergvliering, ideaal voor opslag, hobby of het stallen van een voertuig.
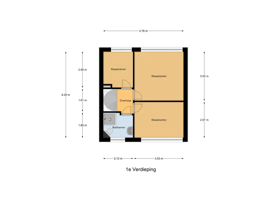
Eerste verdieping: Overloop met toegang tot drie slaapkamers, allen met rechte gevels wat zorgt voor extra ruimte en gebruiksgemak. De slaapkamers zijn voorzien van een nette laminaatvloer. Alle slaapkamers zijn voorzien van rolluiken. De doucheruimte is praktisch ingericht met een douche, wastafel en een tweede toilet.
Tweede verdieping: Via een vaste trap bereik je de bergzolder met opstelling van de cv-combiketel. Door middel van een nokverhoging en verdere afwerking is hier de mogelijkheid om een volwaardige vierde slaapkamer met voorzolder te realiseren.
Bijzonderheden:
- Energielabel C
- Hoekwoning met extra lichtinval
- Uitbouw met mogelijkheden voor woonkeuken
- Diepe, zonnige tuin op het zuidwesten
- Vrijstaande garage met nok en bergvliering
- Drie slaapkamers (mogelijkheid tot vier)
- Rolluiken en screens aanwezig
- Gelegen nabij alle voorzieningen
Kortom: een fijne gezinswoning met veel potentie, ruimte en een heerlijke tuin. Kom kijken en ontdek de mogelijkheden!
Lees meer
Op een prettige en centrale locatie ligt deze nette 4-kamer hoekeengezinswoning met uitbouw, een diepe achtertuin op het zonnige zuidwesten en een vrijstaande garage met nok en bergvliering. Een ideale woning voor wie comfortabel wil wonen met volop ruimte én uitbreidingsmogelijkheden.
De woning is gelegen nabij het stadshart van Spijkenisse, winkels, openbaar vervoer, scholen en diverse groen- en recreatievoorzieningen. Hier woon je rustig, maar toch met alles binnen handbereik.
Begane grond: Entree via de hal met meterkast, toiletruimte en trapopgang naar de eerste verdieping. De lichte doorzonwoonkamer beschikt over een fraaie laminaatvloer en een extra zijraam, wat zorgt voor een prettige lichtinval.
De keuken is uitgevoerd in een praktische hoekopstelling. Vanuit de keuken bereik je de uitbouw, die volop mogelijkheden biedt – bijvoorbeeld voor het realiseren van een ruime woonkeuken.
Via de uitbouw heb je toegang tot de diepe en zonnige achtertuin op het zuidwesten. Achterin de tuin bevindt zich de vrijstaande garage met nok en bergvliering, ideaal voor opslag, hobby of het stallen van een voertuig.
Eerste verdieping: Overloop met toegang tot drie slaapkamers, allen met rechte gevels wat zorgt voor extra ruimte en gebruiksgemak. De slaapkamers zijn voorzien van een nette laminaatvloer. Alle slaapkamers zijn voorzien van rolluiken. De doucheruimte is praktisch ingericht met een douche, wastafel en een tweede toilet.
Tweede verdieping: Via een vaste trap bereik je de bergzolder met opstelling van de cv-combiketel. Door middel van een nokverhoging en verdere afwerking is hier de mogelijkheid om een volwaardige vierde slaapkamer met voorzolder te realiseren.
Bijzonderheden:
- Energielabel C
- Hoekwoning met extra lichtinval
- Uitbouw met mogelijkheden voor woonkeuken
- Diepe, zonnige tuin op het zuidwesten
- Vrijstaande garage met nok en bergvliering
- Drie slaapkamers (mogelijkheid tot vier)
- Rolluiken en screens aanwezig
- Gelegen nabij alle voorzieningen
Kortom: een fijne gezinswoning met veel potentie, ruimte en een heerlijke tuin. Kom kijken en ontdek de mogelijkheden!
Kenmerken
Overdracht
| Vraagprijs | € 350.000,- k.k. |
| Status | verkocht onder voorbehoud |
| Aanvaarding | in overleg |
Bouw
| Soort woning | woonhuis |
| Soort woonhuis | eengezinswoning |
| Type woonhuis | hoekwoning |
| Aantal woonlagen | 3 |
| Bouwvorm | bestaande bouw |
| Bouwjaar | 1965 |
| Huidige bestemming | woonruimte |
| Onderhoud binnen | goed |
| Onderhoud buiten | goed |
| Isolatie | dakisolatie, muurisolatie, vloerisolatie, gedeeltelijk dubbel glas |
Energie
| Energielabel | C |
| Verwarming | cv ketel |
| Warm water | cv ketel |
| C.V.-ketel | combi-ketel van Intergas |
Oppervlakten en inhoud
| Woonoppervlakte | 81 m² |
| Perceeloppervlakte | 207 m² |
| Inhoud | 332 m³ |
| Inpandigeruimte oppervlakte | 4 m² |
| Bergruimte oppervlakte | 41 m² |
Indeling
| Aantal kamers | 4 |
| Aantal slaapkamers | 3 |
Buitenruimte
| Ligging | in woonwijk |
| Tuin | achtertuin met een oppervlakte van 122 m² en is gelegen op het zuidwesten |
Bergruimte
| Garage | vrijstaande stenen garage |
| Parkeergelegenheid | openbaar parkeren, op eigen terrein |
Media
IK WIL EEN BEZICHTIGING AANVRAGEN
Laat je gegevens achter en wij nemen contact met je op om een bezichtiging in te plannen



































