Kanariestraat 11
3201 VE Spijkenisse
beschikbaar
€ 309.900,- k.k.
Interesse in deze woning?
Laurens helpt je graag verder! Neem contact met ons op.
Omschrijving
Sfeervolle hoekwoning met royale tuin, moderne afwerking en twee eigen parkeerplaatsen
Op zoek naar een instapklare woning op een fijne, centrale plek? Deze moderne hoekwoning aan de Kanariestraat 11 biedt een unieke combinatie van comfort, ruimte en een heerlijke ligging midden in het centrum van Spijkenisse maar dan wel in een rustige straat. Met twee eigen parkeerplaatsen, een grote zonnige tuin en een volledig geïsoleerde berging is dit een plek waar je je direct thuis voelt.
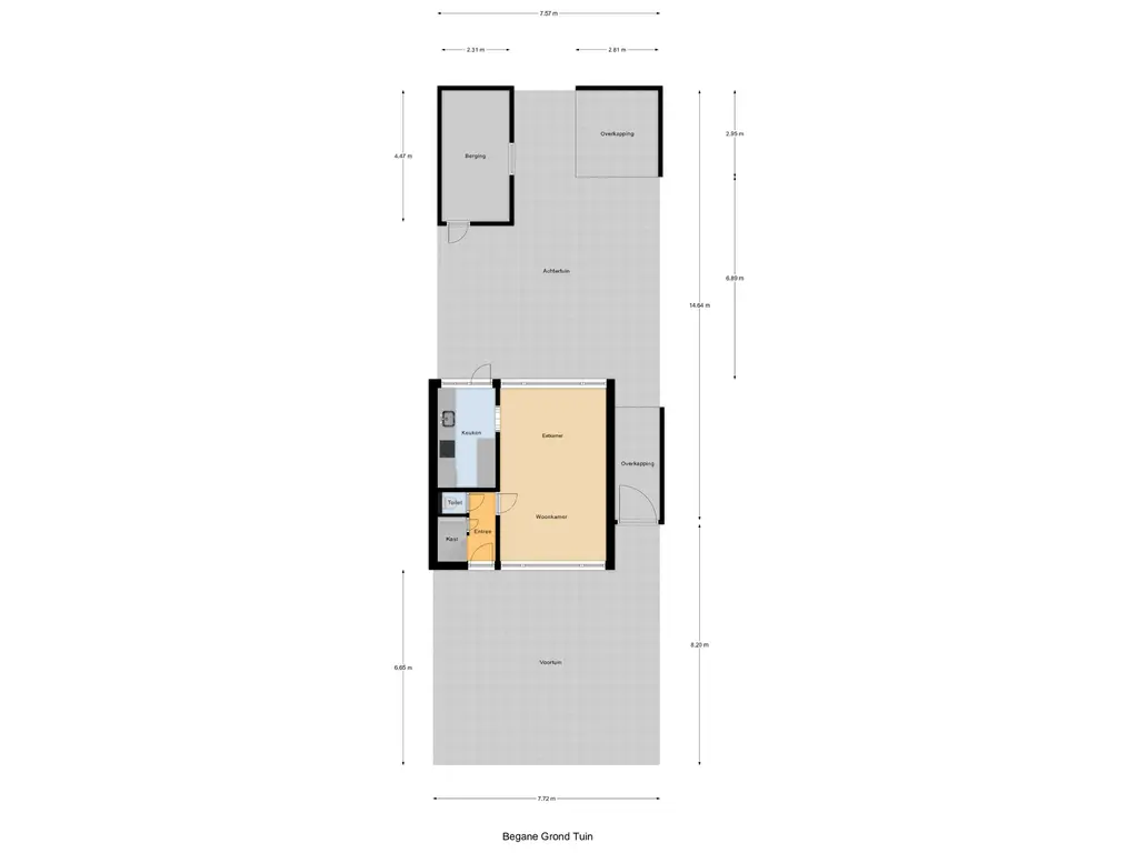
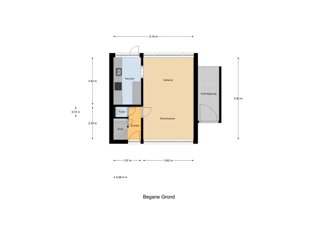
Begane grond: Je stapt binnen in een nette hal met toegang tot de berging met meterkast, het moderne toilet en de trapopgang naar boven. De lichte doorzonwoonkamer (ca. 5,70 x 3,65 m) heeft een fijne, open sfeer en wordt verbonden met de keuken. De moderne keuken (2023) is voorzien van een inductiekookplaat, afzuigkap, combi-oven en vaatwasser helemaal klaar voor dagelijks kookplezier.
Via de tuindeur bereik je de grote achter- en zijtuin: een zonnige buitenruimte met sierbestrating, een mooie overkapping en een volledig geïsoleerde berging met aansluitingen voor wasmachine en droger. Ideaal als werkruimte, hobbyruimte of extra opslag. De gehele begane grond is strak afgewerkt en voorzien van een laminaatvloer.
Eerste verdieping: De overloop, voorzien van airconditioning, geeft toegang tot drie slaapkamers allemaal met laminaatvloer en een nette wandafwerking. De moderne badkamer (2022) is uitgerust met een inloopdouche, wastafelmeubel en tweede toilet (sanibroyeur). Een vlizotrap leidt naar de praktische bergvliering waar tevens de CV-ketel (2008) staat opgesteld.
Kenmerken:
- Energielabel D
- Moderne keuken (2023) en badkamer (2022)
- Hoekwoning met twee eigen parkeerplaatsen
- Hardhouten kozijnen, grotendeels dubbel glas
- Dakisolatie en volledig geïsoleerde berging
- Gelegen in het hart van Spijkenisse, maar toch rustig
- Oplevering: maart 2026
Een heerlijk huis met verrassend veel ruimte, een perfecte ligging en helemaal klaar voor nieuwe bewoners. Kom snel kijken en ervaar zelf hoe fijn het hier wonen is!
Lees meer
Op zoek naar een instapklare woning op een fijne, centrale plek? Deze moderne hoekwoning aan de Kanariestraat 11 biedt een unieke combinatie van comfort, ruimte en een heerlijke ligging midden in het centrum van Spijkenisse maar dan wel in een rustige straat. Met twee eigen parkeerplaatsen, een grote zonnige tuin en een volledig geïsoleerde berging is dit een plek waar je je direct thuis voelt.
Begane grond: Je stapt binnen in een nette hal met toegang tot de berging met meterkast, het moderne toilet en de trapopgang naar boven. De lichte doorzonwoonkamer (ca. 5,70 x 3,65 m) heeft een fijne, open sfeer en wordt verbonden met de keuken. De moderne keuken (2023) is voorzien van een inductiekookplaat, afzuigkap, combi-oven en vaatwasser helemaal klaar voor dagelijks kookplezier.
Via de tuindeur bereik je de grote achter- en zijtuin: een zonnige buitenruimte met sierbestrating, een mooie overkapping en een volledig geïsoleerde berging met aansluitingen voor wasmachine en droger. Ideaal als werkruimte, hobbyruimte of extra opslag. De gehele begane grond is strak afgewerkt en voorzien van een laminaatvloer.
Eerste verdieping: De overloop, voorzien van airconditioning, geeft toegang tot drie slaapkamers allemaal met laminaatvloer en een nette wandafwerking. De moderne badkamer (2022) is uitgerust met een inloopdouche, wastafelmeubel en tweede toilet (sanibroyeur). Een vlizotrap leidt naar de praktische bergvliering waar tevens de CV-ketel (2008) staat opgesteld.
Kenmerken:
- Energielabel D
- Moderne keuken (2023) en badkamer (2022)
- Hoekwoning met twee eigen parkeerplaatsen
- Hardhouten kozijnen, grotendeels dubbel glas
- Dakisolatie en volledig geïsoleerde berging
- Gelegen in het hart van Spijkenisse, maar toch rustig
- Oplevering: maart 2026
Een heerlijk huis met verrassend veel ruimte, een perfecte ligging en helemaal klaar voor nieuwe bewoners. Kom snel kijken en ervaar zelf hoe fijn het hier wonen is!
Kenmerken
Overdracht
| Vraagprijs | € 309.900,- k.k. |
| Status | beschikbaar |
| Aanvaarding | in overleg |
Bouw
| Soort woning | woonhuis |
| Soort woonhuis | eengezinswoning |
| Type woonhuis | hoekwoning |
| Aantal woonlagen | 3 |
| Bouwvorm | bestaande bouw |
| Bouwjaar | 1958 |
| Huidige bestemming | woonruimte |
| Onderhoud binnen | goed |
| Onderhoud buiten | goed |
| Voorzieningen | tv kabel |
| Isolatie | dakisolatie, dubbel glas |
Energie
| Energielabel | D |
| Verwarming | cv ketel |
| Warm water | cv ketel, elektrische boiler eigendom |
| C.V.-ketel | gas gestookte combi-ketel uit 2008 van Intergas, eigendom |
Oppervlakten en inhoud
| Woonoppervlakte | 68 m² |
| Perceeloppervlakte | 169 m² |
| Inhoud | 279 m³ |
| Inpandigeruimte oppervlakte | 1 m² |
| Bergruimte oppervlakte | 10 m² |
| Buitenruimte oppervlakte | 6 m² |
Indeling
| Aantal kamers | 4 |
| Aantal slaapkamers | 3 |
Buitenruimte
| Ligging | aan rustige weg, in centrum |
| Tuin | achtertuin met een oppervlakte van 74 m² en is gelegen op het noorden |
Bergruimte
| Parkeergelegenheid | openbaar parkeren, parkeervergunningen, op eigen terrein |
| Schuur/berging | vrijstaand steen |
Media
IK WIL EEN BEZICHTIGING AANVRAGEN
Laat je gegevens achter en wij nemen contact met je op om een bezichtiging in te plannen































