Frans Halsstraat 63B
3202 TG Spijkenisse
verkocht onder voorbehoud
Interesse in deze woning?
Laurens helpt je graag verder! Neem contact met ons op.
Omschrijving
Gezellig en keurig afgewerkt 3-kamerappartement op een fijne locatie!
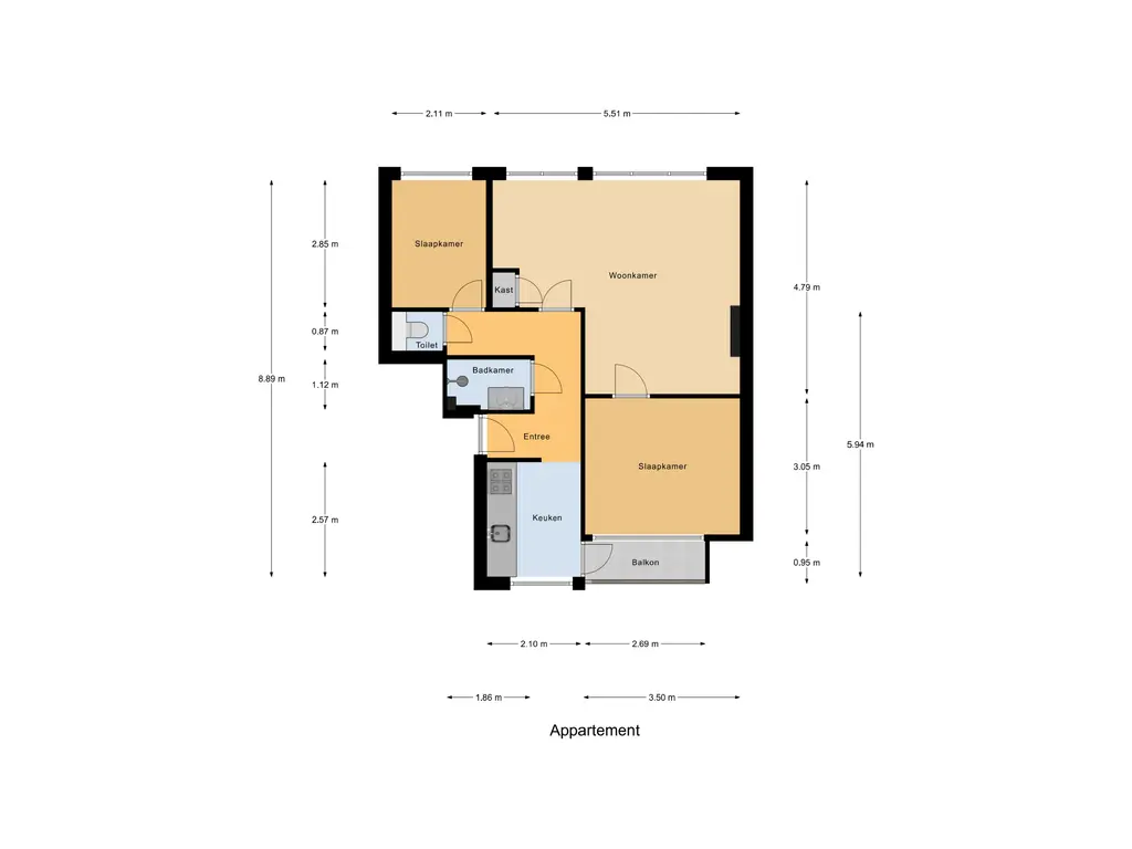
Welkom in dit sfeervolle en goed onderhouden 3-kamerappartement, gelegen op een ideale plek dichtbij winkels, openbaar vervoer, groenvoorzieningen en uitvalswegen. Een heerlijk plekje waar comfort, licht en rust samenkomen!
Begane grond: Via de afgesloten entree met brievenbussen en bergingen op de begane grond bereik je het appartement op de 2e verdieping.
Binnenkomst in de hal met toegang tot het separate (zwevende) toilet en de net afgewerkte badkamer, volledig betegeld en voorzien van een wastafel en douche. De woning beschikt over twee slaapkamers – één aan de voorzijde en één aan de achterzijde – ideaal als hoofdslaapkamer, werkkamer of logeerkamer.
De ruime, lichte woonkamer is vergroot doordat een extra kamer bij de woonruimte is getrokken, wat zorgt voor een prettige open sfeer. Vanuit hier is er een directe verbinding met de moderne keuken aan de voorzijde, voorzien van diverse inbouwapparatuur: een vaatwasser, oven, afzuigkap, gaskookplaat en koelkast. Via de keuken stap je zo het balkon op, waar je heerlijk van de buitenlucht kunt genieten.
Kenmerken:
- Gehele woning voorzien van een nette laminaatvloer
- Dubbelglas/HR++ en deels kunststof kozijnen
- CV-ketel (2010)
- Gestuukte wanden, strak en modern
- Maandelijkse VvE-bijdrage: € 220,-
- Oplevering in overleg
Een keurig appartement waar je zó in kunt! Perfect voor starters, stellen of iedereen die op zoek is naar een fijne, verzorgde woning op een centrale locatie.
Lees meer
Welkom in dit sfeervolle en goed onderhouden 3-kamerappartement, gelegen op een ideale plek dichtbij winkels, openbaar vervoer, groenvoorzieningen en uitvalswegen. Een heerlijk plekje waar comfort, licht en rust samenkomen!
Begane grond: Via de afgesloten entree met brievenbussen en bergingen op de begane grond bereik je het appartement op de 2e verdieping.
Binnenkomst in de hal met toegang tot het separate (zwevende) toilet en de net afgewerkte badkamer, volledig betegeld en voorzien van een wastafel en douche. De woning beschikt over twee slaapkamers – één aan de voorzijde en één aan de achterzijde – ideaal als hoofdslaapkamer, werkkamer of logeerkamer.
De ruime, lichte woonkamer is vergroot doordat een extra kamer bij de woonruimte is getrokken, wat zorgt voor een prettige open sfeer. Vanuit hier is er een directe verbinding met de moderne keuken aan de voorzijde, voorzien van diverse inbouwapparatuur: een vaatwasser, oven, afzuigkap, gaskookplaat en koelkast. Via de keuken stap je zo het balkon op, waar je heerlijk van de buitenlucht kunt genieten.
Kenmerken:
- Gehele woning voorzien van een nette laminaatvloer
- Dubbelglas/HR++ en deels kunststof kozijnen
- CV-ketel (2010)
- Gestuukte wanden, strak en modern
- Maandelijkse VvE-bijdrage: € 220,-
- Oplevering in overleg
Een keurig appartement waar je zó in kunt! Perfect voor starters, stellen of iedereen die op zoek is naar een fijne, verzorgde woning op een centrale locatie.
Kenmerken
Overdracht
| Vraagprijs | € 235.000,- k.k. |
| Status | verkocht onder voorbehoud |
| Aanvaarding | in overleg |
| VVE checklist | niet aanwezig |
Bouw
| Soort woning | appartement |
| Soort appartement | portiekflat |
| Aantal woonlagen | 3 |
| Woonlaag | 2 |
| Bouwvorm | bestaande bouw |
| Bouwjaar | 1960 |
| Open portiek | nee |
| Huidige bestemming | woonruimte |
| Onderhoud binnen | goed |
| Onderhoud buiten | goed |
| Voorzieningen | tv kabel |
| Isolatie | dubbel glas |
Energie
| Energielabel | E |
| Verwarming | cv ketel |
| Warm water | cv ketel |
| C.V.-ketel | gas gestookte combi-ketel uit 2010 van Bosch 25 VRC Eurostar, eigendom |
Oppervlakten en inhoud
| Woonoppervlakte | 56 m² |
| Buitenruimte oppervlakte | 3 m² |
Indeling
| Aantal kamers | 3 |
| Aantal slaapkamers | 2 |
Buitenruimte
| Ligging | in woonwijk |
Bergruimte
| Parkeergelegenheid | openbaar parkeren |
| Schuur/berging | box |
Media
IK WIL EEN BEZICHTIGING AANVRAGEN
Laat je gegevens achter en wij nemen contact met je op om een bezichtiging in te plannen

























