Egelveen 237
3205 AT Spijkenisse
verkocht
Interesse in deze woning?
Laurens helpt je graag verder! Neem contact met ons op.
Omschrijving
Op het mooiste plekje van Egelveen: Ruime 3-laagse eengezinswoning met diepe tuin op het zuiden.
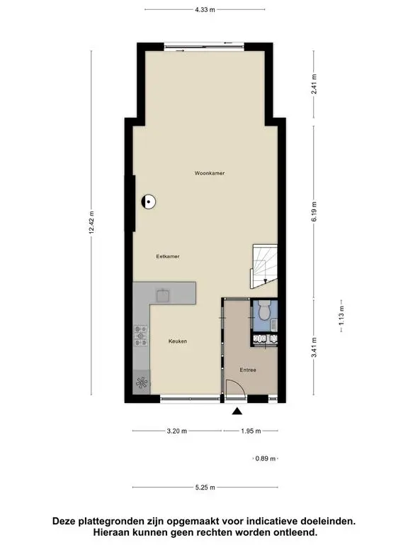
Deze ruime 3-laagse eengezinswoning van 136 m² woonoppervlakte is gelegen op 215 m² eigen grond en biedt alles voor een comfortabel gezinsleven. De woning is voorzien van een uitbouw, dakopbouw, vier slaapkamers en een zeer diepe achtertuin van maar liefst 23 meter, gelegen op het zonnige zuiden. De voorzijde ligt aan een autovrij pad met speelplaats, wat het ideaal maakt voor opgroeiende kinderen.
Begane grond: De woning is bereikbaar via een voortuin met berging. De entree biedt toegang tot de hal met meterkast, garderobe en een toilet met fonteintje. De royale tuingerichte woonkamer is voorzien van een uitbouw, een palletkachel, PVC-vloer en een hardhouten open trap naar de eerste verdieping. Door de grote schuifpui heb je toegang tot de diepe achtertuin, waar je kunt genieten van de zon op verschillende terrassen. De open keuken, gesitueerd aan de voorzijde van de woning, is uitgerust met diverse inbouwapparatuur.
Eerste verdieping: Op de ruime overloop bevinden zich drie goed bemeten slaapkamers, allemaal voorzien van een airco voor extra comfort. De vergrote badkamer is volledig betegeld en beschikt over een ligbad/douche, zwevend toilet, wastafel met meubel, wasmachine- en drogeraansluiting en een dakraam voor extra lichtinval.
Tweede verdieping: De tweede verdieping is voorzien van een vierde slaapkamer, ontstaan door de dakopbouw. Deze kamer is bijzonder licht en biedt veel ruimte. Ook hier is een airco aanwezig voor optimaal comfort.
Kenmerken:
- Energielabel B
- Keukenopstelling 2017
- Zeer diepe, zonnige achtertuin
- Elke slaapkamer beschikt over een airco
- CV Ketel 2016
- Oplevering
Deze woning biedt de perfecte combinatie van ruimte, comfort en een ideale ligging voor gezinnen. Maak snel een afspraak voor een bezichtiging!
Lees meer
Deze ruime 3-laagse eengezinswoning van 136 m² woonoppervlakte is gelegen op 215 m² eigen grond en biedt alles voor een comfortabel gezinsleven. De woning is voorzien van een uitbouw, dakopbouw, vier slaapkamers en een zeer diepe achtertuin van maar liefst 23 meter, gelegen op het zonnige zuiden. De voorzijde ligt aan een autovrij pad met speelplaats, wat het ideaal maakt voor opgroeiende kinderen.
Begane grond: De woning is bereikbaar via een voortuin met berging. De entree biedt toegang tot de hal met meterkast, garderobe en een toilet met fonteintje. De royale tuingerichte woonkamer is voorzien van een uitbouw, een palletkachel, PVC-vloer en een hardhouten open trap naar de eerste verdieping. Door de grote schuifpui heb je toegang tot de diepe achtertuin, waar je kunt genieten van de zon op verschillende terrassen. De open keuken, gesitueerd aan de voorzijde van de woning, is uitgerust met diverse inbouwapparatuur.
Eerste verdieping: Op de ruime overloop bevinden zich drie goed bemeten slaapkamers, allemaal voorzien van een airco voor extra comfort. De vergrote badkamer is volledig betegeld en beschikt over een ligbad/douche, zwevend toilet, wastafel met meubel, wasmachine- en drogeraansluiting en een dakraam voor extra lichtinval.
Tweede verdieping: De tweede verdieping is voorzien van een vierde slaapkamer, ontstaan door de dakopbouw. Deze kamer is bijzonder licht en biedt veel ruimte. Ook hier is een airco aanwezig voor optimaal comfort.
Kenmerken:
- Energielabel B
- Keukenopstelling 2017
- Zeer diepe, zonnige achtertuin
- Elke slaapkamer beschikt over een airco
- CV Ketel 2016
- Oplevering
Deze woning biedt de perfecte combinatie van ruimte, comfort en een ideale ligging voor gezinnen. Maak snel een afspraak voor een bezichtiging!
Kenmerken
Overdracht
| Status | verkocht |
| Aanvaarding | in overleg |
Bouw
| Soort woning | woonhuis |
| Soort woonhuis | eengezinswoning |
| Type woonhuis | tussenwoning |
| Aantal woonlagen | 3 |
| Bouwvorm | bestaande bouw |
| Bouwjaar | 1974 |
| Huidige bestemming | woonruimte |
| Onderhoud binnen | goed |
| Onderhoud buiten | goed |
Energie
| Energielabel | B |
| Verwarming | cv ketel |
| Warm water | cv ketel |
| C.V.-ketel | gas gestookte combi-ketel uit 2016 van Tzerra M28c, eigendom |
Oppervlakten en inhoud
| Woonoppervlakte | 136 m² |
| Perceeloppervlakte | 215 m² |
| Inhoud | 482 m³ |
| Bergruimte oppervlakte | 7 m² |
Indeling
| Aantal kamers | 5 |
| Aantal slaapkamers | 4 |
Buitenruimte
| Ligging | aan rustige weg, in woonwijk, vrij uitzicht, beschutte ligging |
| Tuin | achtertuin met een oppervlakte van 115 m² en is gelegen op het zuiden |
Bergruimte
| Parkeergelegenheid | openbaar parkeren |
| Schuur/berging | vrijstaand steen |
Media
IK WIL EEN BEZICHTIGING AANVRAGEN
Laat je gegevens achter en wij nemen contact met je op om een bezichtiging in te plannen
































