Zeegat 20
3224 SJ Hellevoetsluis
beschikbaar
€ 435.000,- k.k.
Interesse in deze woning?
Laurens helpt je graag verder! Neem contact met ons op.
Omschrijving
Een uitzicht om nooit op uitgekeken te raken!
Thuiskomen voelt hier als vakantie. Dit keurig onderhouden 3-kamerappartement is heerlijk licht, ruim opgezet en beschikt over een fantastisch dakterras op het zuidwesten waar u volop kunt genieten van de zon én het prachtige uitzicht.
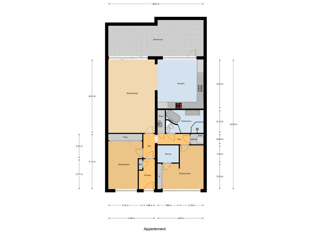
Begane grond: Net verzorgde, afgesloten entree met brievenbussen, bellentableau, lift en trappenhuis. De deuren in het complex – ook die van de lift – openen automatisch, ideaal als u met boodschappen aankomt. Op de begane grond bevindt zich tevens een ruime berging (ca. 10 m²).
1e verdieping: Via de hal/entree met meterkast bereikt u alle vertrekken. De lichte woonkamer met grote schuifpui geeft toegang tot het zonnige dakterras, waar u geniet van ruimte, rust en uitzicht. De ruime eetkeuken is voorzien van veel kastruimte en diverse inbouwapparatuur: keramische kookplaat, afzuigkap, koelkast, vriezer, vaatwasser en combioven. De gehele woning beschikt over een fraaie houten parketvloer.
Het appartement heeft twee slaapkamers aan de galerijkant (noordzijde), waardoor het in de zomer heerlijk koel blijft. Beide slaapkamers beschikken over een vaste schuifwandkast, en de tweede slaapkamer tevens over een eigen sauna.
De ruime badkamer is compleet uitgerust met ligbad, douchecabine, dubbele wastafel, handdoekradiator en toilet. Daarnaast is er een afgesloten ruimte met aansluiting voor wasmachine en droger.
Omgeving: Het appartement ligt op een rustige en gunstige locatie met alle voorzieningen binnen handbereik. Winkelcentrum De Struytse Hoeck met supermarkten, winkels en horecagelegenheden ligt op loopafstand. Ook zorgvoorzieningen, sportclubs en recreatiemogelijkheden zijn nabij. Voor een heerlijke wandeling loopt u zo de Struytse Zeedijk op.
Bijzonderheden:
- Energielabel B
- Fantastisch uitzicht!
- Groot dakterras op het zuidwesten met 2 elektrisch bedienbare zonneschermen
- Ruime berging (ca. 10 m²) op de begane grond
- Actieve VvE met maandelijkse bijdrage € 396,- per maand
- 2 slaapkamers, waarvan één met sauna
- Volledig voorzien van houten parketvloer
- Rustige ligging met winkels en voorzieningen op loopafstand
- Complex met automatische deuren en lift
Kortom: Een licht, ruim en comfortabel appartement met een uitzicht dat nooit verveelt. Kom kijken en ervaar zelf het vakantiegevoel dat dit appartement u biedt!
Lees meer
Thuiskomen voelt hier als vakantie. Dit keurig onderhouden 3-kamerappartement is heerlijk licht, ruim opgezet en beschikt over een fantastisch dakterras op het zuidwesten waar u volop kunt genieten van de zon én het prachtige uitzicht.
Begane grond: Net verzorgde, afgesloten entree met brievenbussen, bellentableau, lift en trappenhuis. De deuren in het complex – ook die van de lift – openen automatisch, ideaal als u met boodschappen aankomt. Op de begane grond bevindt zich tevens een ruime berging (ca. 10 m²).
1e verdieping: Via de hal/entree met meterkast bereikt u alle vertrekken. De lichte woonkamer met grote schuifpui geeft toegang tot het zonnige dakterras, waar u geniet van ruimte, rust en uitzicht. De ruime eetkeuken is voorzien van veel kastruimte en diverse inbouwapparatuur: keramische kookplaat, afzuigkap, koelkast, vriezer, vaatwasser en combioven. De gehele woning beschikt over een fraaie houten parketvloer.
Het appartement heeft twee slaapkamers aan de galerijkant (noordzijde), waardoor het in de zomer heerlijk koel blijft. Beide slaapkamers beschikken over een vaste schuifwandkast, en de tweede slaapkamer tevens over een eigen sauna.
De ruime badkamer is compleet uitgerust met ligbad, douchecabine, dubbele wastafel, handdoekradiator en toilet. Daarnaast is er een afgesloten ruimte met aansluiting voor wasmachine en droger.
Omgeving: Het appartement ligt op een rustige en gunstige locatie met alle voorzieningen binnen handbereik. Winkelcentrum De Struytse Hoeck met supermarkten, winkels en horecagelegenheden ligt op loopafstand. Ook zorgvoorzieningen, sportclubs en recreatiemogelijkheden zijn nabij. Voor een heerlijke wandeling loopt u zo de Struytse Zeedijk op.
Bijzonderheden:
- Energielabel B
- Fantastisch uitzicht!
- Groot dakterras op het zuidwesten met 2 elektrisch bedienbare zonneschermen
- Ruime berging (ca. 10 m²) op de begane grond
- Actieve VvE met maandelijkse bijdrage € 396,- per maand
- 2 slaapkamers, waarvan één met sauna
- Volledig voorzien van houten parketvloer
- Rustige ligging met winkels en voorzieningen op loopafstand
- Complex met automatische deuren en lift
Kortom: Een licht, ruim en comfortabel appartement met een uitzicht dat nooit verveelt. Kom kijken en ervaar zelf het vakantiegevoel dat dit appartement u biedt!
Kenmerken
Overdracht
| Vraagprijs | € 435.000,- k.k. |
| Status | beschikbaar |
| Aanvaarding | direct |
| VVE checklist | niet aanwezig |
Bouw
| Soort woning | appartement |
| Soort appartement | galerijflat |
| Aantal woonlagen | 1 |
| Woonlaag | 1 |
| Bouwvorm | bestaande bouw |
| Bouwjaar | 1977 |
| Open portiek | nee |
| Huidige bestemming | woonruimte |
| Onderhoud binnen | goed |
| Onderhoud buiten | goed |
| Isolatie | muurisolatie, dubbel glas |
Energie
| Energielabel | B |
| Verwarming | cv ketel |
| Warm water | cv ketel |
Oppervlakten en inhoud
| Woonoppervlakte | 106 m² |
| Bergruimte oppervlakte | 10 m² |
| Buitenruimte oppervlakte | 27 m² |
Indeling
| Aantal kamers | 3 |
| Aantal slaapkamers | 2 |
Buitenruimte
| Ligging | aan water, aan rustige weg |
Bergruimte
| Parkeergelegenheid | openbaar parkeren |
| Schuur/berging | inpandig |
Media
IK WIL EEN BEZICHTIGING AANVRAGEN
Laat je gegevens achter en wij nemen contact met je op om een bezichtiging in te plannen








































